立即预约 立即预约
免费定制整装家居

免费定制整装家居

一站置家 全程无忧 一省到底
hide.png

当前位置: 首页 > 装修案例效果图 > 格林玫瑰湾-轻奢

格林玫瑰湾-轻奢 180平 轻奢风格效果图

收藏
案例风格 轻奢 案例户型 三居 案例面积 180平米
楼盘名称 格林玫瑰湾 设计师 孙安强 案例类型 改善性住宅

设计理念:本案运用的风格思路是现代轻奢风格,运用了大量的高光金属线条和大理石的背景墙做搭配,可使空间看起来更具现代感和轻奢感,最终实现客户对高端家居生活的向往和憧憬。

客厅
第1张
第2张
餐厅
第1张
卧室
第1张
第2张
卫生间
第1张
厨房
第1张
儿童房
第1张
门厅
第1张
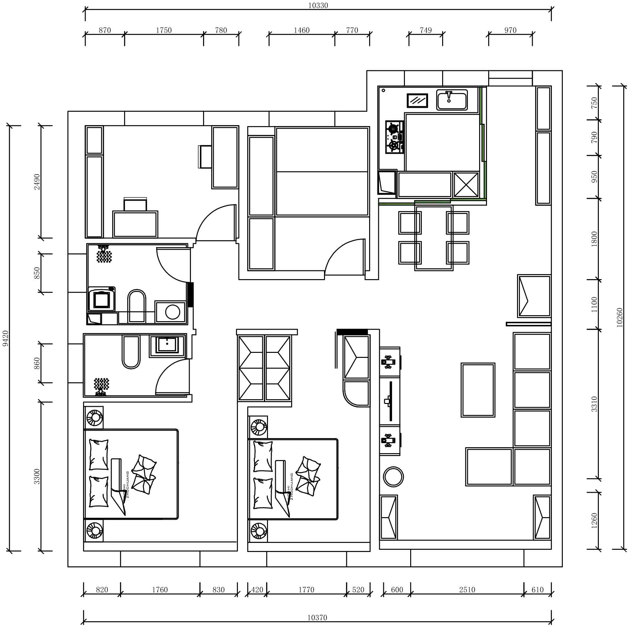
户型图
第1张
格林玫瑰湾-180平-现代轻奢-北客厅.jpg 格林玫瑰湾-180平-现代轻奢-首图.jpg

客厅顶面采用边棚镶嵌金色金属线条,虚光灯带作为搭配,背景墙使用深色护墙板加线性灯,再加上黑白灰软装的映衬,是空间看上去轻奢的设计感极佳。

格林玫瑰湾-180平-现代轻奢-餐厅.jpg

餐厅依然使用黑白灰的色调加上大理石桌面进行配合,餐椅选择了一个小跳色点缀,使餐厅气氛轻松活跃,不呆板压抑,最后和客厅完美融合成了一个整体。

格林玫瑰湾-180平-现代轻奢-北卧室.jpg 格林玫瑰湾-180平-现代轻奢-主卧室.jpg

主卧室选择浅灰色壁纸加上当下最流行的双眼皮石膏线进行搭配,再加上高端定位的床品,使整个主卧室空间看上去令人舒适,心情愉悦。

格林玫瑰湾-180平-现代轻奢-卫生间.jpg

卫生间没有使用太过复杂的设计,墙面选择300*600灰色墙砖加上白色美缝加上一个简单现代的定制手盆下面加上灯带点缀,使空间融合成一个整体。

格林玫瑰湾-180平-现代轻奢-厨房.jpg

厨房的地柜使用和吊柜完全相反的跳色搭配,黑白配色永不过时,加上黑色金属边框拉门和黑色玻璃进行呼应,将极简轻奢的理念贯彻到底。

格林玫瑰湾-180平-现代轻奢-儿童房.jpg 格林玫瑰湾-180平-现代轻奢-玄关.jpg 平面图.jpg

案例设计师

孙安强

设计师:孙安强

从业时间:10年

设计理念:生活是创意的来源,创意源于文化,创意源于自己

预约设计师

算算你家装修多少钱

报名即享丰厚赠品,享半价装修

免费报价
咨询热线:400-656-9909
20190221103704574636.jpg

精品设计案例

20180612134930523248.jpg 服务号二维码.jpg