立即预约 立即预约
免费定制整装家居

免费定制整装家居

一站置家 全程无忧 一省到底
hide.png

当前位置: 首页 > 装修案例效果图 > 信达万科城-现代简约

信达万科城-现代简约 260平 现代简约风格效果图

收藏
案例风格 现代简约 案例户型 复式 案例面积 260平米
楼盘名称 信达万科城 设计师 陆旭 案例类型 改善性住宅

设计理念:本案采用现代风格,大量运用轻奢元素,给人时尚、前卫、优雅,并且还会有温馨舒适的感觉

客厅
第1张
第2张
餐厅
第1张
第2张
卧室
第1张
第2张
第3张
卫生间
第1张
第2张
厨房
第1张
户型图
第1张
第2张
信达万科城-260平 -现代风格-客厅1.jpg 信达万科城-260平 -现代风格-客餐厅.jpg

运用轻奢元素,石膏线条和护墙板加以点缀,在视觉上看起来空间很宽敞,为空间带来了一种华丽时尚的端庄感。

信达万科城-260平 -现代风格-餐厅1.jpg 信达万科城-260平 -现代风格-餐厅2.jpg

白色理石餐桌搭配上金属线条的餐椅,纯白色的餐边柜让主人耳目一新,优雅浪漫,更加渲染了就餐的浪漫。

信达万科城-260平 -现代风格-卧室.jpg 信达万科城-260平 -现代风格-卧室2.jpg 信达万科城-260平 -现代风格-卧室3.jpg

卧室里并没有奢靡的装潢也没有过分华丽的装饰。只有刚好合适的淡淡舒适感,主要通过软装的结合让卧室完美呈现现代风格。地板让卧室显得更加温馨

信达万科城-260平 -现代风格-卫生间2.jpg 信达万科城-260平 -现代风格-卫生间1.jpg

大面积卫生间采用干湿分离,整体灰色瓷砖 让整个空间舒适,时尚,营造出简洁明快的氛围。

信达万科城-260平 -现代风格-厨房.jpg

通过橱柜材质上采用灰白两色的烤漆材质,让厨房更显明亮,大方,并且更好打理。

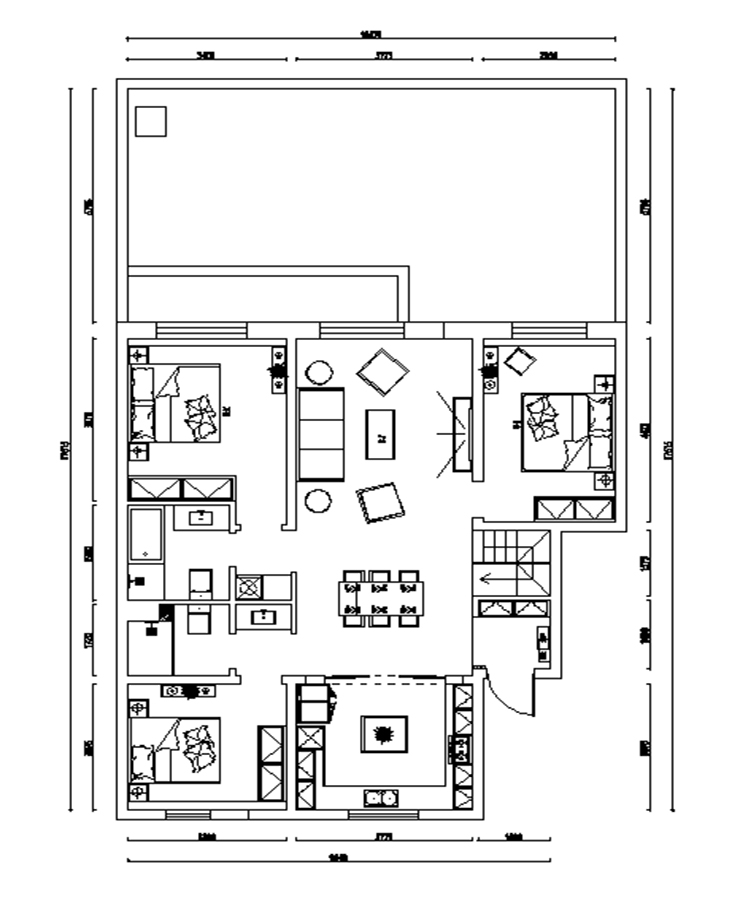
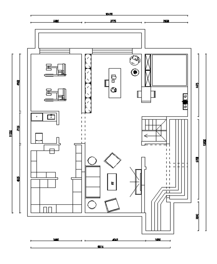
户型图.jpg 户型图2.jpg

案例设计师

陆旭

设计师:陆旭

从业时间:12年

设计理念:懂生活 爱生活 享受生活 才能设计好一个每天生活的地方

预约设计师

算算你家装修多少钱

报名即享丰厚赠品,享半价装修

免费报价
咨询热线:400-656-9909
20190221103704574636.jpg

精品设计案例

20180612134930523248.jpg 服务号二维码.jpg