立即预约 立即预约
免费定制整装家居

免费定制整装家居

一站置家 全程无忧 一省到底
hide.png

当前位置: 首页 > 装修案例效果图 > 龙湖天辰原著-轻奢

龙湖天辰原著-轻奢 350平 轻奢风格效果图

收藏
案例风格 轻奢 案例户型 五居 案例面积 350平米
楼盘名称 龙湖天辰原著 设计师 杨达 案例类型 改善性住宅

设计理念:本案的设计理念是以简单,美观实用为主,多个房间运用柜体及灯线提亮,使屋内的效果做到最大化。

客厅
第1张
第2张
餐厅
第1张
卧室
第1张
第2张
卫生间
第1张
第2张
书房
第1张
第2张
衣帽间
第1张
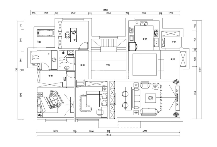
户型图
第1张
龙湖天辰原著 350平 轻奢 客厅 首图.jpg 龙湖天辰原著 350平 轻奢 客厅2.jpg

客厅电视背景墙采用乳胶漆调色,沙发墙是一排柜子,夜晚效果更佳,沙发采用皮质灰色与金属椅子腿,搭配效果更佳,客厅的吊顶采用直线边棚,沙发采用L型转角沙发,舒适性更好。

龙湖天辰原著 350平 轻奢 餐厅.jpg

餐厅更看重整体设计,吊灯的点缀会使食物更有食欲,直线边棚让餐厅更加高级。

龙湖天辰原著 350平 轻奢 卧室.jpg 龙湖天辰原著 350平 轻奢 卧室1.jpg

卧室床与柜子,背景墙都有呼应,灯带的效果不言而喻,使卧室更加通透,鲜亮。卧室有单独的衣帽间,两边的柜门做了透视效果,灯带与透视柜门搭配,使整个衣帽间更加通透。

龙湖天辰原著 350平 轻奢 卫生间.jpg 龙湖天辰原著 350平 轻奢 卫生间1.jpg

卫生间墙砖采用300*600灰色大理石纹理的瓷砖,整体通铺,协调性与美观性更强,灰色和原木搭配起来更具有轻奢风格的体现。

龙湖天辰原著 350平 轻奢 书房.jpg 龙湖天辰原著 350平 轻奢 书房1.jpg 龙湖天辰原著 350平 轻奢 衣柜.jpg 平面图.jpg

案例设计师

杨达

设计师:杨达

从业时间:10年

设计理念:精雕细琢,返璞归真。

预约设计师

算算你家装修多少钱

报名即享丰厚赠品,享半价装修

免费报价
咨询热线:400-656-9909
20190221103704574636.jpg

精品设计案例

20180612134930523248.jpg 服务号二维码.jpg