立即预约 立即预约
免费定制整装家居

免费定制整装家居

一站置家 全程无忧 一省到底
hide.png

当前位置: 首页 > 装修案例效果图 > 龙湖天辰原著-现代简约

龙湖天辰原著-现代简约 260平 现代简约风格效果图

收藏
案例风格 现代简约 案例户型 三居 案例面积 260平米
楼盘名称 龙湖天辰原著 设计师 陆旭 案例类型 儿童房

设计理念:本案采用现代风格,运用了线条装饰,造型简洁,立体层次感较强,以简约实用出发,讲究舒适。

龙湖天宸原著-260平米-现代风格-首图.jpg 龙湖天宸原著-260平米-现代风格-客厅1.jpg 龙湖天宸原著-260平米-现代风格-客厅2.jpg

电视背景墙运用了理石和集成墙板,造型简洁干净,贯穿整个空间,卧室的地方也做了隐藏门的设计 ,与电视背景墙融为一体。多处采用了简单的几何线条,搭配软装,更好的展示出了整体的美感。

龙湖天宸原著-260平米-现代风格-餐厅1.jpg 龙湖天宸原著-260平米-现代风格-餐厅2.jpg

餐厅空间依旧运用了大量的线条搭配浅色理石台面进行衔接,深色餐椅进行点缀,搭配上极具设计感的艺术吊灯,使整体空间完美的和客厅融为一体。

龙湖天宸原著-260平米-现代风格-次卧1.jpg 龙湖天宸原著-260平米-现代风格-次卧2.jpg 龙湖天宸原著-260平米-现代风格-主卧.jpg 龙湖天宸原著-260平米-现代风格-次卧3.jpg

卧室空间没有采用过于复杂的装饰,背景墙采用护墙板和线型灯的搭配,并采用了简约的双眼皮石膏线加以修饰,再加上极具现代感的床品,将现代简约风格贯彻到底。

龙湖天宸原著-260平米-现代风格-卫生间1.jpg 龙湖天宸原著-260平米-现代风格-卫生间3.jpg 龙湖天宸原著-260平米-现代风格-卫生间2.jpg

卫生间运用了灰色系瓷砖搭配白色集成吊顶,在空间布局上充分利用空间,使整体看起来更加简洁大方,主卧卫生间做了嵌入式浴缸满足了业主的需求。

龙湖天宸原著-260平米-现代风格-厨房.jpg

厨房空间采用客厅通铺地砖,使空间更加一体化,没有不必要的装饰线条,用直线强调空间感,给人舒适的感受。

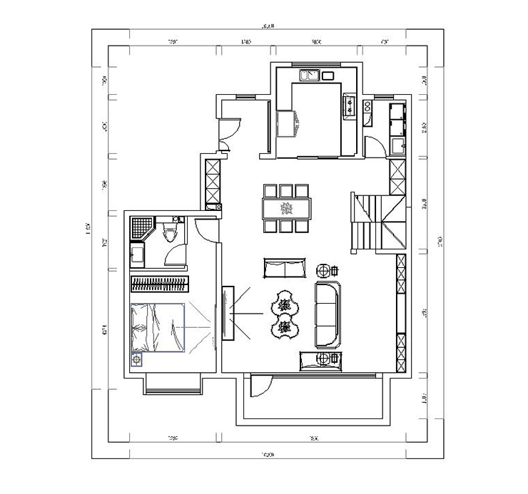
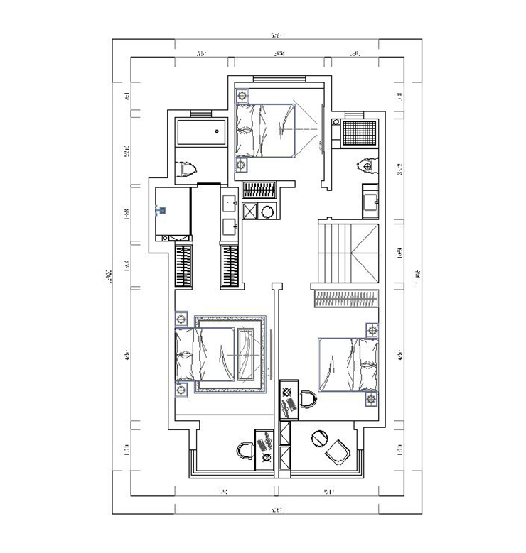
龙湖天宸原著-260平米-现代风格-主卧衣帽间1.jpg 龙湖天宸原著-260平米-现代风格-主卧衣帽间2.jpg 龙湖天宸原著-260平-现代风格-二楼平面图.jpg 龙湖天宸原著-260平-现代风格-一楼平面图.jpg

案例设计师

陆旭

设计师:陆旭

从业时间:12年

设计理念:懂生活 爱生活 享受生活 才能设计好一个每天生活的地方

预约设计师

算算你家装修多少钱

报名即享丰厚赠品,享半价装修

免费报价
咨询热线:400-656-9909
20190221103704574636.jpg

精品设计案例

20180612134930523248.jpg 服务号二维码.jpg