立即预约 立即预约
免费定制整装家居

免费定制整装家居

一站置家 全程无忧 一省到底
hide.png

当前位置: 首页 > 装修案例效果图 > 河畔花园-现代轻奢

河畔花园-现代轻奢 101平 现代简约风格效果图

收藏
案例风格 现代简约 案例户型 三居 案例面积 101平米
楼盘名称 河畔花园 设计师 林凤设计师 案例类型 改善性住宅

设计理念:本案采用现代轻奢风格,在黑白灰的基础上加上了适量的金属元素。墙面整体色调以白色为主,米色为辅,主要表现简约,舒适的现代轻奢风格。

客厅
第1张
第2张
餐厅
第1张
卧室
第1张
第2张
第3张
卫生间
第1张
厨房
第1张
过廊
第1张
第2张
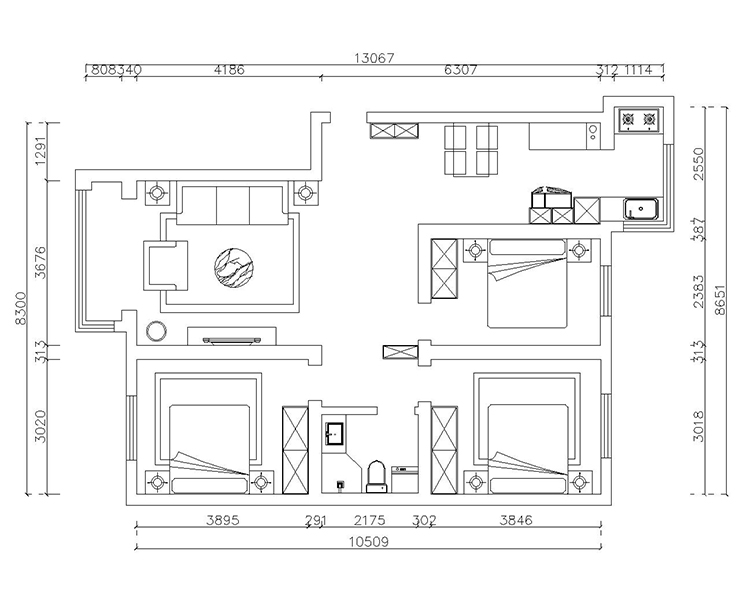
户型图
第1张
河畔花园-101平-现代轻奢风格-客厅.jpg 河畔花园-101平-现代轻奢风格-首图.jpg

采用圈棚吊顶,嵌入金色金属条,营造出一种轻奢的感觉 ,客餐厅通铺浅灰纹理地砖,地砖上墙的电视背景墙,石材型的电视柜,搭配浅色地毯使空间区域更加柔和。

河畔花园-101平-现代轻奢风格-餐厅.jpg

餐桌餐椅采用金色桌腿和蹬腿,餐桌采用岩板台面,搭配同色系空间挂画,使餐厅空间立体化。

次河畔花园-101平-现代轻奢风格-次卧2.jpg 河畔花园-101平-现代轻奢风格-主卧.jpg 河畔花园-101平-现代轻奢风格-次卧1.jpg

主卧为女主人设计了玻璃门衣柜和开放格,增加了大量的储物空间,简单的现代风吊灯与家具搭配起来更显和谐,温馨和舒适,床品和背景墙丰富了房间的色彩。

河畔花园-101平-现代轻奢风格-卫生间.jpg

大面积卫生间,定制洗手盆,淋浴区分成单独的空间,不会在洗完澡后再进行整个卫生间的打理。

河畔花园-101平-现代轻奢风格-厨房.jpg

厨房拐角采用了开放式,宽敞明亮,改造后可放双开门大冰箱,丰富了食材的储物空间。

河畔花园-101平-现代轻奢风格-过廊1.jpg 河畔花园-101平-现代轻奢风格-过廊2.jpg 河畔花园-101平-现代轻奢风格-平面图.jpg

案例设计师

林凤设计师

设计师:林凤设计师

从业时间:0年

设计理念:

预约设计师

算算你家装修多少钱

报名即享丰厚赠品,享半价装修

免费报价
咨询热线:400-656-9909
20190221103704574636.jpg

精品设计案例

20180612134930523248.jpg 服务号二维码.jpg