立即预约 立即预约
免费定制整装家居

免费定制整装家居

一站置家 全程无忧 一省到底
hide.png

当前位置: 首页 > 装修案例效果图 > 荣盛紫提东郡-现代简约

荣盛紫提东郡-现代简约 118平 现代简约风格效果图

收藏
案例风格 现代简约 案例户型 三居 案例面积 118平米
楼盘名称 荣盛紫提东郡 设计师 林凤设计师 案例类型 婚房

设计理念:本案是现代风格,采用简约的线条柔美雅致 ,使整个立体都有条不紊比较符合他们的审美,让设计别有一番风味,深受他们的喜爱。

客厅
第1张
第2张
餐厅
第1张
卧室
第1张
第2张
第3张
卫生间
第1张
厨房
第1张
书房
第1张
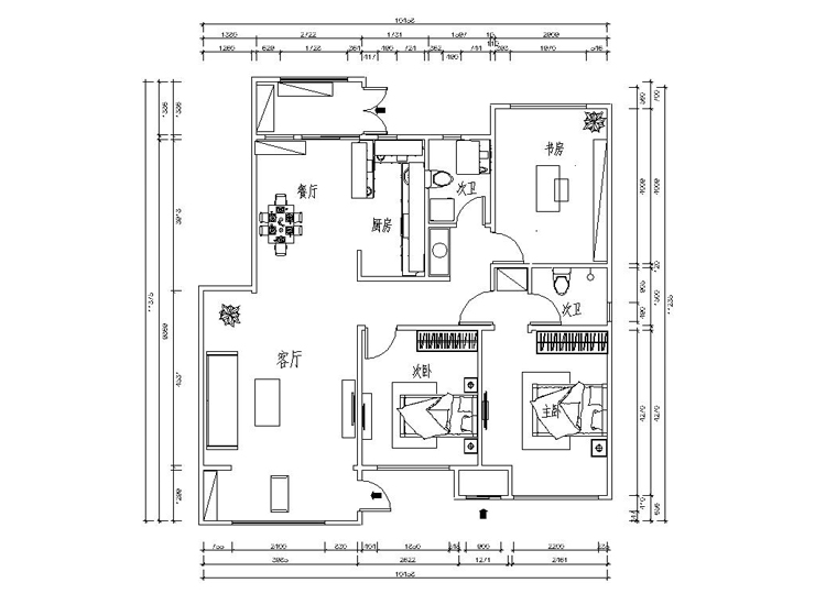
户型图
第1张
S8-王宁-荣盛紫提东郡-118-现代风格-客厅.jpg S8-王宁-荣盛紫提东郡-118-现代风格-首图.jpg

客厅的电视背景墙采用的是硬包与护墙板的结合,沙发背景墙背景用了白色的文化石做背景,放一组现在简约装饰挂画,显得更加有层次感。吊顶是简单的直线棚,简洁明快,与两个背景墙形成呼应。

S8-王宁-荣盛紫提东郡-118-现代风格-餐厅.jpg

餐厅上方采用单独的吊顶,两边采用定制柜的形式增加了就餐区的收纳

S8-王宁-荣盛紫提东郡-118-现代风格-次卧.jpg S8-王宁-荣盛紫提东郡-118-现代风格-主卧.jpg S8-王宁-荣盛紫提东郡-118-现代风格-主卧2.jpg

两个卧室床头背景墙皆采用了乳胶漆调色为床头背景,用挂画做装饰 。衣柜都采用成品衣柜,与床搭配的更加和谐,造型感加强。两个卧室棚顶造型都是运用了简单的成品石膏线造型造型,显得空间更加有层次感,书房采用黑色定制书柜,增加了收纳,看起来整体也特别稳重。

S8-王宁-荣盛紫提东郡-118-现代风格-卫生间.jpg

卫生间采用灰色墙地砖看上去特别的大气沉稳,浴室柜上方采用花片显得格外的有设计感,淋浴区采用浴屏,真正的实现干湿分离,浴室柜采用吊柜增加收纳

S8-王宁-荣盛紫提东郡-118-现代风格-厨房.jpg

厨房设计的开放式开放式厨房,并且与吧台相连接,以及搭配烤箱,蒸箱,洗碗机等电器,更加丰富了厨房的功能。厨房采用黑色与原木色的结合 显得更加的高级

S8-王宁-荣盛紫提东郡-118-现代风格-书房.jpg S8-王宁-荣盛紫提东郡-118-现代风格-平面方案.jpg

案例设计师

林凤设计师

设计师:林凤设计师

从业时间:8年

设计理念:无创新,不设计;设计来源于生活,细节成就品质。

预约设计师

算算你家装修多少钱

报名即享丰厚赠品,品质装修

免费报价
咨询热线:400-656-9909
20190221103704574636.jpg

精品设计案例

20180612134930523248.jpg 服务号二维码.jpg