立即预约 立即预约
免费定制整装家居

免费定制整装家居

一站置家 全程无忧 一省到底
hide.png

当前位置: 首页 > 装修案例效果图 > 浦江御景湾-现代简约

浦江御景湾-现代简约 117平 现代简约风格效果图

收藏
案例风格 现代简约 案例户型 二居 案例面积 117平米
楼盘名称 浦江御景湾 设计师 仲崇彤 案例类型 改善性住宅

设计理念:本案设计主要体现现代风格简约不简单又透露着低调的奢华,业主是一家三口,一对年轻夫妇带一个小孩,喜欢现代简约大气温馨,不张扬也不俗气,所以选现代风格。本案主要是简洁舒适大气为主,男女主都是普通工作人员,孩子六岁,要有独立的学习空间

客厅
第1张
第2张
第3张
第4张
餐厅
第1张
卧室
第1张
卫生间
第1张
儿童房
第1张
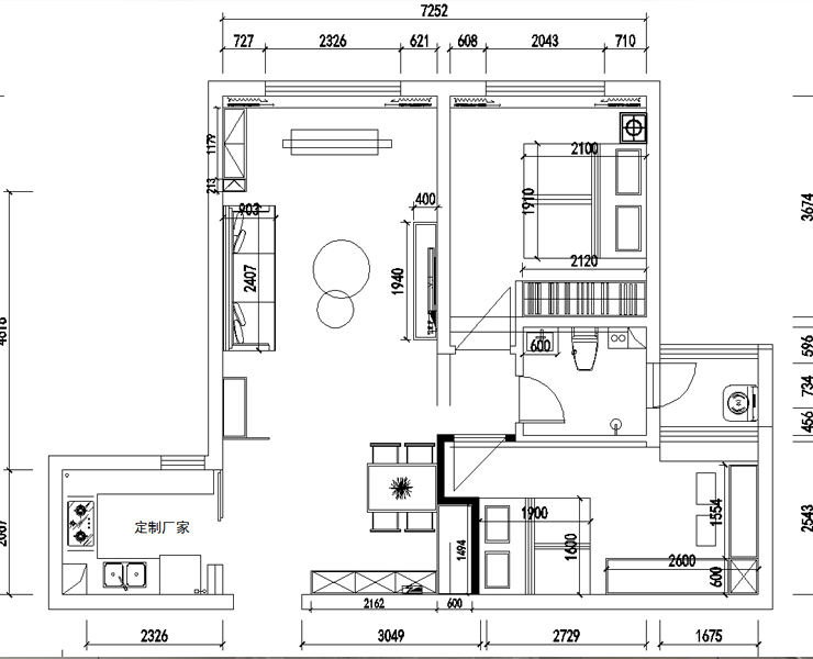
户型图
第1张
S1-仲崇彤-浦江御景湾-117平-现代风格.jpg S1-仲崇彤-浦江御景湾-117平-现代风格-客厅2.jpg S1-仲崇彤-浦江御景湾-117平-现代风格-客厅3.jpg S1-仲崇彤-浦江御景湾-117平-现代风格-首图.jpg

客厅色调主要融入蓝色背景墙进行点缀,视觉丰富视觉空间。沙发背景墙选用白色乳胶漆搭配金属挂件,在颜色上做了个深浅对比,软装上采用现代灰色系沙发,搭配吊灯,灯光后的干净更丰富了层次感。

S1-仲崇彤-浦江御景湾-117平-现代风格-门厅.jpg

餐桌整体墙面采用咖色护墙板色调,与入户鞋柜玄关柜色调完美结合,餐厅采用白色大理石餐桌,营造出整洁用餐空间,简约而温馨,家的味道。

S1-仲崇彤-浦江御景湾-117平-现代风格-卧室.jpg

主卧室背景墙采用蓝色乳胶漆与栗色护墙板结合,衣柜采用咖色,视觉形成冲击力,搭配乳白色布艺床品以及梳妆台,简简单单,又质感。不过于单调。

S1-仲崇彤-浦江御景湾-117平-现代风格-卫生间.jpg

卫生间设计功能分明,灰色防滑地砖与浅灰大理石瓷砖墙面形成碰撞,干净整洁,也好打理。

S1-仲崇彤-浦江御景湾-117平-现代风格-榻榻米.jpg

小孩房的墙面选用浅粉色的艺术漆。在空间的功能上,选用衣柜与书桌一体式设计,既满足睡觉的使用,又能满足空间的收纳,和学习空间,以及活动娱乐区域,让空间格调舒适又明亮。

S1-仲崇彤-浦江御景湾-117平-现代风格-户型图.jpg

案例设计师

仲崇彤

设计师:仲崇彤

从业时间:15年

设计理念:设计就是着重于点、线、面的灵活运用,把整个环境营造出家的温馨。

预约设计师

算算你家装修多少钱

报名即享丰厚赠品,享半价装修

免费报价
咨询热线:400-656-9909
20190221103704574636.jpg

精品设计案例

20180612134930523248.jpg 服务号二维码.jpg