立即预约 立即预约
免费定制整装家居

免费定制整装家居

一站置家 全程无忧 一省到底
hide.png

当前位置: 首页 > 装修案例效果图 > 格林英郡

格林英郡 78平 现代简约风格效果图

收藏
案例风格 现代简约 案例户型 二居 案例面积 78平米
楼盘名称 格林英郡 设计师 林凤设计师 案例类型 改善性住宅

设计理念:本案是以简介明快的设计风格为主,小户型重要之处在于拆改,这个弧形缺点就是没有餐厅,客厅还比较小,拆改后的弧形每个分区的功能都得到了最大化的使用。

客厅
第1张
第2张
第3张
第4张
第5张
餐厅
第1张
卧室
第1张
卫生间
第1张
厨房
第1张
门厅
第1张
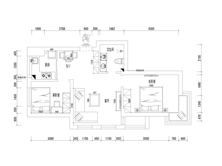
户型图
第1张
  • 案例详情

马晓东-格林英郡78平现代风格-客厅1.jpg 马晓东-格林英郡78平现代风格-客厅.jpg 马晓东-格林英郡78平现代风格-客厅2.jpg 马晓东-格林英郡78平现代风格-客厅3.jpg 马晓东-格林英郡78平现代风格-客厅4.jpg

客厅面积小电视墙采用壁纸其他墙面乳胶漆。主次分明空间感也能拉伸开,

马晓东-格林英郡78平现代风格-餐厅.jpg

简约,明快的色调把本身有限的空间,装饰的层次分明,壁纸的铺贴也起到易打理的功能性。

主卧室.jpg

卧室墙面用深灰色壁纸装饰,整个卧室用深色壁纸做衬托,显得高档,现代。再用粉色的窗帘做配饰,显得深沉又不失浪漫。

马晓东-格林英郡78平现代风格-卫生间.jpg

仿古砖横纹铺贴,搭配红色光面的马赛克,把空间装饰的既有个性,又有动感。

马晓东-格林英郡78平现代风格-厨房.jpg 马晓东-格林英郡78平现代风格-门厅.jpg 马晓东-格林英郡78平现代风格-平面图.jpg

案例设计师

林凤设计师

设计师:林凤设计师

从业时间:12年

设计理念:让设计成为艺术,让艺术进入生活。

预约设计师

算算你家装修多少钱

报名即享丰厚赠品,享半价装修

免费报价
咨询热线:400-656-9909
20190221103704574636.jpg

精品设计案例

20180612134930523248.jpg 服务号二维码.jpg