立即预约 立即预约
免费定制整装家居

免费定制整装家居

一站置家 全程无忧 一省到底
hide.png

当前位置: 首页 > 装修案例效果图 > 集美万象-轻奢

集美万象-轻奢 135平 轻奢风格效果图

收藏
案例风格 轻奢 案例户型 三居 案例面积 135平米
楼盘名称 集美万象 设计师 林凤设计师 案例类型 改善性住宅

设计理念:本案通过跟业主几个月的沟通,风格最终定义为现代轻奢风格。既有现代风格简洁大气,又有轻奢的低调奢华,就是本案整体风格的特点。深色的壁纸搭配爵士白的大理石,使整体空间更有层次感。让家成为温暖又避风的港湾。一对的改善住房,要求现代轻奢风格。整体给人得感觉要温馨大气,低调奢华。需要两个卫生间,多增加一些储物空间。

客厅
第1张
第2张
餐厅
第1张
卧室
第1张
第2张
卫生间
第1张
厨房
第1张
过廊
第1张
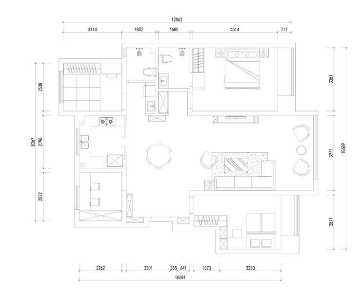
户型图
第1张
集美万象-135-现代轻奢-客厅2.jpg 集美万象-135-现代轻奢-首图.jpg

电视墙石材上墙加金属条做点缀,时尚又大气。墙面整体以深色壁纸为主,凸显温馨之感。

集美万象-135-现代轻奢-餐厅.jpg

餐厅空间较大,放圆形餐桌,增多坐人空间。与客户紧密相连,使客餐厅整体显出高端大气。撞色餐椅与客厅抱枕窗帘相呼应,更加突出整体感。

集美万象-135-现代轻奢-次卧室.jpg 集美万象-135-现代轻奢-主卧室.jpg

卧室空间整体墙面以咖色壁纸为主,温馨不失典雅,端庄不失温柔,让人一进卧室就特别舒服。

集美万象-135-现代轻奢-卫生间.jpg 集美万象-135-现代轻奢-厨房.jpg

厨房做四门封闭式厨房。开门就是开放式厨房,显着整体大气,关门就是封闭,禁止有油烟外跑。

集美万象-135-现代轻奢-过廊.jpg 集美万象-135平-现代轻奢-户型图.jpg

案例设计师

林凤设计师

设计师:林凤设计师

从业时间:9年

设计理念:设计独特,赋予品味,用色彩装点生活

预约设计师

算算你家装修多少钱

报名即享丰厚赠品,享半价装修

免费报价
咨询热线:400-656-9909
20190221103704574636.jpg

精品设计案例

20180612134930523248.jpg 服务号二维码.jpg