立即预约 立即预约
免费定制整装家居

免费定制整装家居

一站置家 全程无忧 一省到底
hide.png

当前位置: 首页 > 装修案例效果图 > 法兰香颂-北欧风格

法兰香颂-北欧风格 90平 北欧风格效果图

收藏
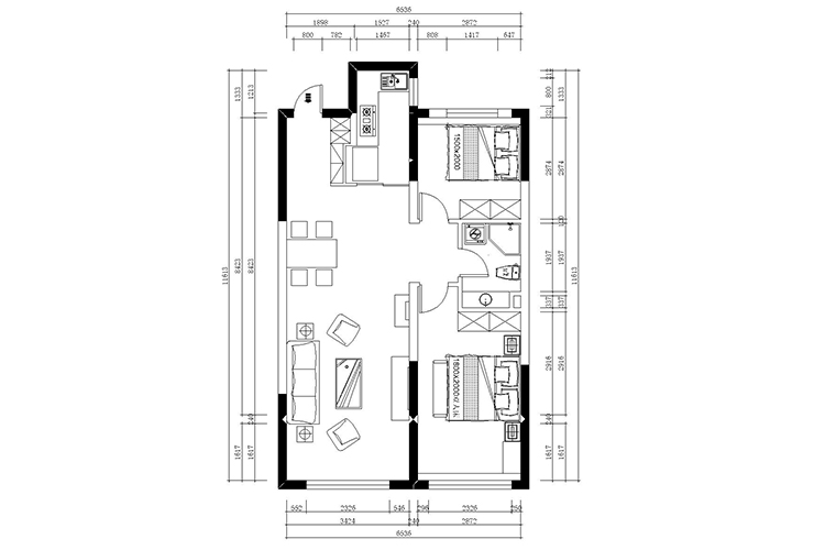
案例风格 北欧 案例户型 二居 案例面积 90平米
楼盘名称 法兰香颂 设计师 林凤设计师 案例类型 婚房

设计理念:本案例为北欧风格,北欧设计回归自然,崇尚原木韵味,外加现代、实用、精美的艺术设计风格,反映出现代都市人进入后现代社会后的另一种思考方向。业主为新婚小两口,男主和女主为个体,这个户型标准两室两厅户型,目前还没有孩子,主卧室要求宽敞明亮,靠窗边位置需要预留读书喝茶空间。门厅柜需要可以较大收纳鞋子,衣物。

S10-何宏光-法兰香颂-90-北欧风格-客厅1.jpg S10-何宏光-法兰香颂-90-北欧风格-客厅2.jpg S10-何宏光-法兰香颂-90-北欧风格-客厅3.jpg

客厅考虑到打造轻松、舒适、自然的环境,沙发采用了软体布艺沙发,触感舒适面料及中密海绵,电视背景墙采用乳胶漆调暖色,地面采用原木色地板为主色调,棚角采用简洁石膏直板线条修饰增加了整体空间层次。

S10-何宏光-法兰香颂-90-北欧风格-客厅1.jpg S10-何宏光-法兰香颂-90-北欧风格-客厅2.jpg S10-何宏光-法兰香颂-90-北欧风格-客厅3.jpg

主卧室业主要求宽敞明亮,床头采用偏冷色乳胶漆调色,增加视觉的深度,同时给人一种清爽舒适感,在空间构造中,左侧白百叶衣柜与右侧简欧梳妆台互相呼应。北卧室运用了北欧经典颜色搭配,温馨、舒适

S10-何宏光-法兰香颂-90-北欧风格-北卧室1.jpg S10-何宏光-法兰香颂-90-北欧风格-北卧室2.jpg S10-何宏光-法兰香颂-90-北欧风格-主卧室1.jpg S10-何宏光-法兰香颂-90-北欧风格-主卧室2.jpg

卫生间采用定制洗手台,尽最大可能提升收纳空间和业主操作台面,同时采用淋雨湿区分离,实用和使用都能发挥到极致。

S10-何宏光-法兰香颂-90-北欧风格-厨房.jpg

为了满足厨房冷藏收纳,将厨房外扩,设计双开门冰箱,增长橱柜上、下柜长度,提升厨房冷冻和常温空间收纳,操作顺序按照洗、切、炒合理操作动线。

S10-何宏光-法兰香颂-90-北欧风格-平面布局图.jpg

案例设计师

林凤设计师

设计师:林凤设计师

从业时间:8年

设计理念:一切设计来源生活,从我的手中到你的家里,合理运用材料及色彩,打造心灵港湾!

预约设计师

算算你家装修多少钱

报名即享丰厚赠品,品质装修

免费报价
咨询热线:400-656-9909
20190221103704574636.jpg

精品设计案例

20180612134930523248.jpg 服务号二维码.jpg