立即预约 立即预约
免费定制整装家居

免费定制整装家居

一站置家 全程无忧 一省到底
hide.png

当前位置: 首页 > 装修案例效果图 > 金科集美万象-现代风格

金科集美万象-现代风格 110平 现代简约风格效果图

收藏
案例风格 现代简约 案例户型 三居 案例面积 110平米
楼盘名称 金科集美万象 设计师 李丹 案例类型 婚房

设计理念:本案设计整体以简单、舒适、明亮为主导,致力于为业主打造一个舒适温馨、干净简洁的家。

客厅
第1张
第2张
第3张
第4张
第5张
餐厅
第1张
卧室
第1张
第2张
卫生间
第1张
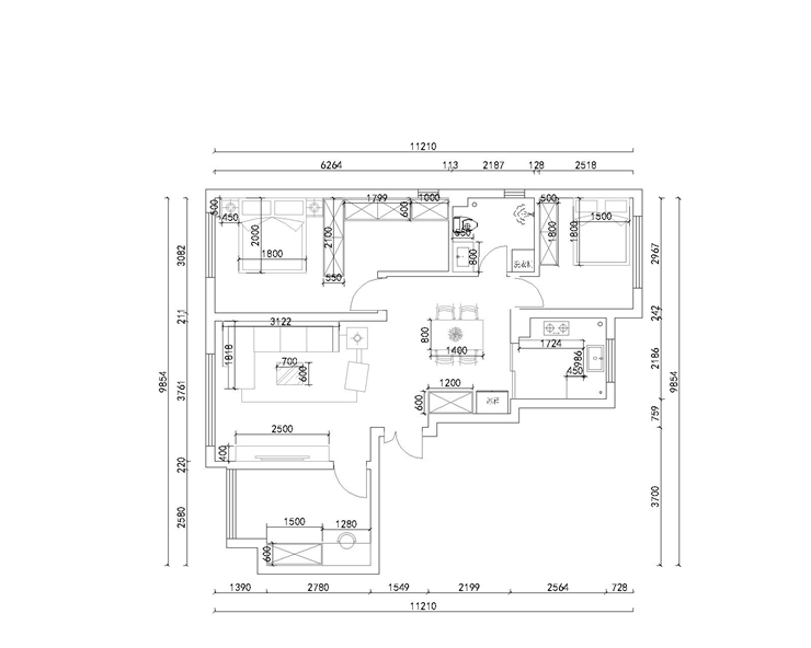
户型图
第1张
金科集美万象-110平-现代风格-客餐厅.jpg 金科集美万象-110平-现代风格-客厅2.jpg 金科集美万象-110平-现代风格-客厅.jpg 金科集美万象-110平-现代风格-客厅3.jpg 金科集美万象-110平-现代风格-客厅4.jpg

简单舒适客厅让人心情愉悦。棚面采用直线条装饰,除去复杂的装饰造型,使整个客厅看起来干净简洁。浅灰色沙发与深灰色地砖采用同色系搭配。深蓝色电视背景墙与黑胡桃电视柜搭配,点亮整个空间的色彩。使得整个空间简洁,干净时尚。

金科集美万象-110平-现代风格-餐厅.jpg

金属与石材组成的餐桌与皮质餐椅相搭配,使整个餐厅明亮而不失色彩。墙边搭配白色餐边柜,满足客户居住使用需求。

金科集美万象-110平-现代风格-卧室.jpg 金科集美万象-110平-现代风格-卧室2.jpg

主卧室主要以灰色为主,浅灰色床身搭配深灰色毛毯,窗帘采用灰色系,整个空间给人以舒适沉稳、简单明亮的感觉。

金科集美万象-110平-现代风格-卫生间.jpg

卫生间墙砖采用拼贴技术,灰色与白色墙砖相搭配。明亮又不失沉稳。白色洗手盆与深蓝色柜体结合,简约大气、明亮而又干练。

金科集美万象-110平-现代风格-户型图.jpg

案例设计师

李丹

设计师:李丹

从业时间:5年

设计理念:用我的专业和你的想法,打造专业的家

预约设计师

算算你家装修多少钱

报名即享丰厚赠品,品质装修

免费报价
咨询热线:400-656-9909
20190221103704574636.jpg

精品设计案例

20180612134930523248.jpg 服务号二维码.jpg