立即预约 立即预约
免费定制整装家居

免费定制整装家居

一站置家 全程无忧 一省到底
hide.png

当前位置: 首页 > 装修案例效果图 > 万达公园-现代轻奢

万达公园-现代轻奢 110平 轻奢风格效果图

收藏
案例风格 轻奢 案例户型 三居 案例面积 110平米
楼盘名称 万达公园 设计师 刘云静 案例类型 改善性住宅

设计理念:本案整体采用暖色系为主,高端、大气、上档次。一家三口居住,但是主要还是男主人住,女主人在外地工作,孩子上大学。

客厅
第1张
第2张
第3张
餐厅
第1张
卧室
第1张
厨房
第1张
衣帽间
第1张
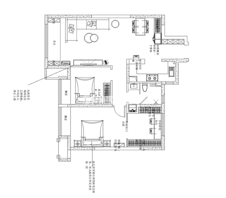
户型图
第1张
万达公园-110平-现代轻奢-电视背景.jpg 万达公园-110平-现代轻奢-客厅 (2).jpg 万达公园-110平-现代轻奢-客厅.jpg

客厅家具采用的是绒感较强烈的家具,黑色搭配珊瑚粉的沙发,大理石金属质感的茶几,护墙板电视背景墙,石膏线框沙发背景,整体看着高端。

万达公园-110平-现代轻奢-玄关.jpg

大理石质感的餐桌搭配灰蓝色餐椅和客厅边几颜色形成呼应,餐厅背景采用轻奢风格的装饰品作为点缀。

万达公园-110平-现代轻奢-主卧室.jpg

主卧室主床头中间采用孔雀绿颜色的壁布,两边石膏线成护墙板。

万达公园-110平-现代轻奢-厨房.jpg

本案是敞开式厨房,厨柜采用白色门板,米色的墙砖,让整个厨房空间简洁,干净,吧台让整个空间更有氛围。

万达公园-110平-现代轻奢-衣帽间.jpg 万达公园-110平-现代轻奢-平面图.jpg

案例设计师

刘云静

设计师:刘云静

从业时间:10年

设计理念:在我的世界里,设计不仅是视觉的艺术,更是情感的传递与文化的融合。

预约设计师

算算你家装修多少钱

报名即享丰厚赠品,享半价装修

免费报价
咨询热线:400-656-9909
20190221103704574636.jpg

精品设计案例

20180612134930523248.jpg 服务号二维码.jpg