立即预约 立即预约
免费定制整装家居

免费定制整装家居

一站置家 全程无忧 一省到底
hide.png

当前位置: 首页 > 装修案例效果图 > 碧桂园御长白-港式

碧桂园御长白-港式 185平 港式风格效果图

收藏
案例风格 港式 案例户型 四居 案例面积 185平米
楼盘名称 碧桂园御长白 设计师 齐逢辉 案例类型 婚房

设计理念:简约不等于简单,现代简约风格的住宅装修设计是经过创新得出的设计和思路的延展,并不是平常的“堆砌”和简单的“摆放”,功能主义完美植入艺术的美感,让居住者身心感受美好!

客厅
第1张
第2张
卧室
第1张
第2张
卫生间
第1张
厨房
第1张
书房
第1张
门厅
第1张
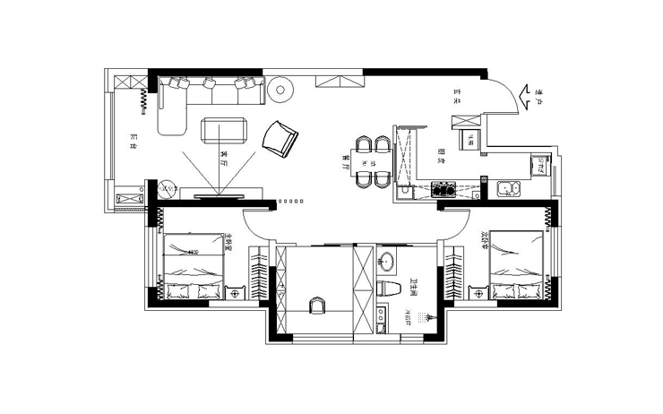
户型图
第1张
碧桂园御长白-95㎡-现代风格-客厅.jpg 碧桂园御长白-95㎡-现代风格-首图.jpg

客厅主要以卡其色金色为主,家具选用灰色以及黑色进行搭配,空间内巧妙植入大胆亮彩色色,因业主两人对家的品质特别重视,希望回到家有个性的简约环境,所以这种搭配比较适合,并且在原户型的基础做了一些改动,扩大室内空间,对整体空间动线规划更是得到客户的极大认可。

碧桂园御长白-95㎡-现代风格-北卧室.jpg 碧桂园御长白-95㎡-现代风格--南主卧室.jpg

主卧室将儿童活动室结合起来,方便后期照顾孩子,主卧室的定制衣柜别出心裁,将梳妆台和衣柜结合起来,巧妙的利用空间和颜色错位,营造出艺术而富有特点的装饰效果。

碧桂园御长白-95㎡-现代风格-卫生间.jpg

卫生间充分利用了烟道和下水管处的空间,做了储物的壁龛,实用大方,尽量满足客户洗浴时的需求和功能。墙面用大面积的灰色作为底色,将木质洗手柜和白色卫浴凸显的很有档次。

碧桂园御长白-95㎡-现代风格-厨房.jpg

厨房大胆用多开来门,大气而且实用,橱柜颜色也是顺应整个风格做了灰色岩板效果,自然和大气的感觉相映成章。

碧桂园御长白-95㎡-现代风格-书房.jpg 碧桂园御长白-95㎡-现代风格-玄关.jpg 碧桂园御长白-95㎡-现代风格-平面图 .jpg

案例设计师

齐逢辉

设计师:齐逢辉

从业时间:12年

设计理念:设计为王,只有新颖的设计才会在大浪淘沙中闪烁出与众不同的光芒。

预约设计师

算算你家装修多少钱

报名即享丰厚赠品,享半价装修

免费报价
咨询热线:400-656-9909
20190221103704574636.jpg

精品设计案例

20180612134930523248.jpg 服务号二维码.jpg