立即预约 立即预约
免费定制整装家居

免费定制整装家居

一站置家 全程无忧 一省到底
hide.png

当前位置: 首页 > 装修案例效果图 > 华润二十四城-现代简约

华润二十四城-现代简约 117平 现代简约风格效果图

收藏
案例风格 现代简约 案例户型 三居 案例面积 117平米
楼盘名称 华润二十四城 设计师 李雪 案例类型 改善性住宅

设计理念:本案整体设计为现代风格,无论是家具亦或墙面造型等,都有些许的造型来凸显整体风格,既是现代风格但比标准的现代更有层次感,更符合年轻人的审美。

客厅
第1张
第2张
第3张
第4张
餐厅
第1张
卧室
第1张
第2张
第3张
卫生间
第1张
厨房
第1张
阳台
第1张
儿童房
第1张
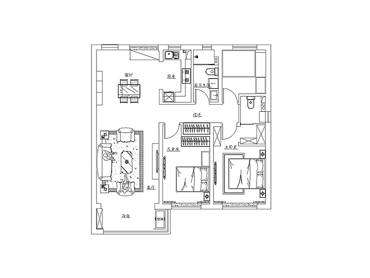
户型图
第1张
华润二十四城-117-现代风格-首图.jpg 华润二十四城-117-现代风格-客厅-(2).jpg 华润二十四城-117-现代风格-客厅.jpg 华润二十四城-117-现代风格-首图.jpg

客厅的空间足够大,但没有一个玄关,所以就将餐厅旁的墙面整体设计成鞋柜装饰柜,这样将狭长的餐厅背景墙融入到了整个空间中。又不显得突兀。

华润二十四城-117-现代风格-餐厅.jpg

餐厅的空间规规矩矩,放置四人桌够用,材质搭配上和门厅鞋柜和沙发相呼应,窗边定制柜,充分利用空间。

华润二十四城-117-现代风格-次卧.jpg 华润二十四城-117-现代风格-卧室.jpg 华润二十四城-117-现代风格-主卧.jpg

主卧保留主卫生间,将其缩小,中间设计成小型衣帽间,加之一米八的双人床,空间也够用,主卫放置个手盆和马桶即可,中间用拉门,衣帽间既比普通增加了储物空间又防止主卫门正对卧室。

华润二十四城-117-现代风格-卫生间.jpg

主卫生间保留一个手盆和马桶即可,因为三口居住孩子小所以有一个大卫生间即可,次卫生间功能需求就比较全面,正常生活所需的洗衣机和淋浴区等等。

华润二十四城-117-现代风格-厨房.jpg

厨房设计成开敞式厨房,由于空间不算大,尽可能利用空间,柜体使用素色材质,因为是开敞式厨房所以风格也是现代的。

华润二十四城-117-现代风格-阳台.jpg 华润二十四城-117-现代风格-儿童房.jpg

南次卧以后用作孩子居住,一米五的床旁边放置个书桌,定制的衣柜增加了储物空间,北卧是榻榻米兼书房,标准的榻榻米和书桌。

华润二十四城-117-现代风格-平面布置图.jpg

案例设计师

李雪

设计师:李雪

从业时间:6年

设计理念:设计源于生活,而又升华于生活。

预约设计师

算算你家装修多少钱

报名即享丰厚赠品,品质装修

免费报价
咨询热线:400-656-9909
20190221103704574636.jpg

精品设计案例

20180612134930523248.jpg 服务号二维码.jpg