立即预约 立即预约
免费定制整装家居

免费定制整装家居

一站置家 全程无忧 一省到底
hide.png

当前位置: 首页 > 装修案例效果图 > 保利茉莉公馆-现代

保利茉莉公馆-现代 105平 现代简约风格效果图

收藏
案例风格 现代简约 案例户型 二居 案例面积 105平米
楼盘名称 保利茉莉公馆 设计师 林凤设计师 案例类型 婚房

设计理念:本案是现代复古风格,比较符合年轻人的审美标准,有点复古的色调,主要还是现代风格为主,空间丰富、功能强。为客户营造一个看上去明朗丰富舒适的家,来消除工作的疲惫,忘却都市的喧哗。

客厅
第1张
第2张
第3张
卧室
第1张
第2张
卫生间
第1张
衣帽间
第1张
门厅
第1张
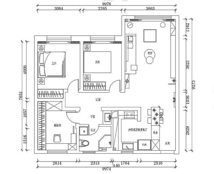
户型图
第1张
S8-保利茉莉公馆-105-现代风格-首图.jpg S8-保利茉莉公馆-105-现代风格-客厅1.jpg S8-保利茉莉公馆-105-现代风格-客厅2.jpg

客厅的背景做了一组石膏线造型墙涂刷的米白色乳胶漆,放置一组复古装饰画。客厅吊顶是一组简约石膏线,客厅含有布艺、木质、金属元素来增添家的多元化。电视柜是选用了胡桃木色显得有质感且电视柜的储物功能强。

S8-保利茉莉公馆-105-现代风格-次卧室.jpg S8-保利茉莉公馆-105-现代风格-主卧室.jpg

主卧室床头背景墙刷了一面暖灰色的乳胶漆加一组复古装饰画。到顶衣柜复古造型加白色柜体,床头加了一组吊灯,整体造型感加强。次卧室是床头墙面刷了浅咖色乳胶漆,显得卧室温馨。床头也是加了一组吊灯,营造温馨的氛围。两个卧室棚顶造型都是运用了简单的石膏线显得空间大气。

S8-保利茉莉公馆-105-现代风格-卫生间.jpg S8-保利茉莉公馆-105-现代风格-衣帽间.jpg

棚梳妆间内做了一面墙的衣柜,有了女主人衣物的储物地方。窗户下放置一张梳妆台,采光好,梳妆的期间还可以看看外面的风景。整体衣柜把手采用的是圆形把手柜门带有复古造型,采用白色的柜门,使这个空间简洁明亮。

S8-保利茉莉公馆-105-现代风格-门厅.jpg

门厅左侧放置鞋柜,保留了基本的储物功能,鞋柜上添加了灯带设计,使得小空间有大造型。

S8-保利茉莉公馆-105-现代风格-平面方案.jpg

案例设计师

林凤设计师

设计师:林凤设计师

从业时间:6年

设计理念:一切随心,用心去感悟空间

预约设计师

算算你家装修多少钱

报名即享丰厚赠品,享半价装修

免费报价
咨询热线:400-656-9909
20190221103704574636.jpg

精品设计案例

20180612134930523248.jpg 服务号二维码.jpg