立即预约 立即预约
免费定制整装家居

免费定制整装家居

一站置家 全程无忧 一省到底
hide.png

当前位置: 首页 > 装修案例效果图 > 莫奈小镇-美式

莫奈小镇-美式 220平 美式风格效果图

收藏
案例风格 美式 案例户型 四居 案例面积 220平米
楼盘名称 莫奈小镇 设计师 贺博文 案例类型 改善性住宅

设计理念:艺术源自设计,设计源自生活。业主是一对夫妻,对生活的品质要求较高但又不失低调,想要一个时尚又充满温暖和爱的家。

莫奈小镇-220平-美式风格-客厅3.jpg 莫奈小镇-220平-美式风格-客厅.jpg 莫奈小镇-220平-美式风格-客厅2.jpg 莫奈小镇-220平-美式风格-客厅4.jpg 莫奈小镇-220平-美式风格-客厅7.jpg 莫奈小镇-220平-美式风格-客厅5.jpg 莫奈小镇-220平-美式风格-首图.jpg

客户喜欢简洁的美式风格,所以选择了简单的原木色和米色来进行色彩搭配。沙发选择的3+1式多人沙发,沙发背景墙选用简单的纯白色加挂画,用旁边的绿植来做点缀,温馨而又简单整洁。

莫奈小镇-220平-美式风格-餐厅.jpg 莫奈小镇-220平-美式风格-餐厅2.jpg

餐厅部位放了一个白色挂画,享受生活的慢节奏,正中间放置了原木色的餐桌,纯木色的餐椅搭配灰色地砖更加简约。

莫奈小镇-220平-美式风格-厨房.jpg

厨房以原木色和白色为主体基调,采用灰色地砖及白色墙砖,原木色的橱柜进行搭配,是典型的美式风格主题,简约而不失单调,给人一种清新素雅的感觉。

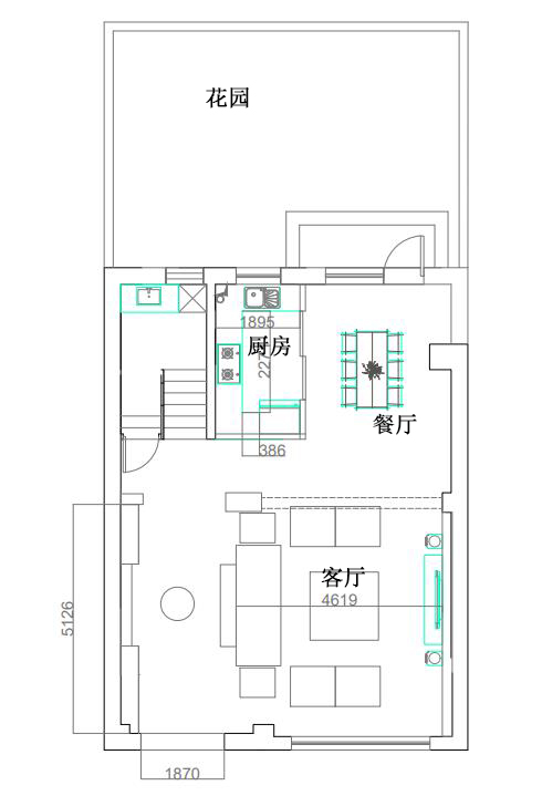
莫奈小镇-220平-美式风格-平面图.jpg

案例设计师

贺博文

设计师:贺博文

从业时间:20年

设计理念:有限空间、无限艺术

预约设计师

算算你家装修多少钱

报名即享丰厚赠品,品质装修

免费报价
咨询热线:400-656-9909
20190221103704574636.jpg

精品设计案例

20180612134930523248.jpg 服务号二维码.jpg