立即预约 立即预约
免费定制整装家居

免费定制整装家居

一站置家 全程无忧 一省到底
hide.png

当前位置: 首页 > 装修案例效果图 > 孔雀城-现代简约

孔雀城-现代简约 105平 现代简约风格效果图

收藏
案例风格 现代简约 案例户型 三居 案例面积 105平米
楼盘名称 孔雀城 设计师 贺博文 案例类型 婚房

设计理念:因生活而设计,因设计而完美。本间住宅的户主是一家三口,根据住宅本身的建筑形式,加入了现代轻奢的元素,是经典而又现代的室内生活空间。

客厅
第1张
餐厅
第1张
卧室
第1张
第2张
卫生间
第1张
第2张
厨房
第1张
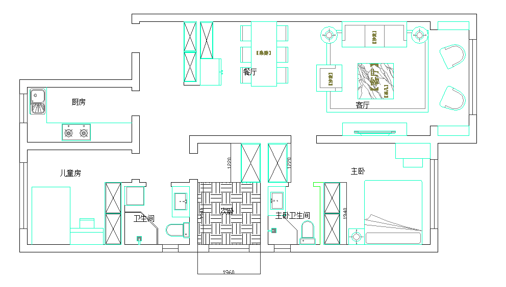
户型图
第1张
孔雀城-105平-现代风格-客厅.jpg

客厅的室内空间较为开阔,需要利用这一品质创造出家庭的氛围,限的空间依照主人的生活尺度被细致地分割和利用,形成一个开放式的社交活动区域,满足了主人时常热情待客的需求。

孔雀城-105平-现代风格-餐厅.jpg

餐厅部位墙壁只挂了一幅简单的壁画,享受生活的慢节奏,白色的餐桌椅搭配灰色的地砖更加简约时尚。

孔雀城-105平-现代风格-卧室.jpg 孔雀城-105平-现代风格-主卧室.jpg

卧室单元有三块,主卧、次卧、儿童房,主卧将卫生间和卧室规划一体,拆除更改了墙壁,增加了卧室的空间动线和收纳空间,满足了家庭对主卧的需求。次卧空间较小作为榻榻米房,进一步增加储物空间。因户主的孩子正在上学,故将儿童房放于北卧,能聚气为佳。因“聚气”是风水学中最基本的原理之一,空旷的房间难以达到“聚气”的效果,所以房间宁可小而雅致,忌大而无当。

孔雀城-105平-现代风格-卫生间.jpg 孔雀城-105平-现代风格-卫生间2.jpg

卫生间采用灰白黑基调的颜色,做到了干湿分离的日常生活需求,金色边条起点缀作用,整个空间的色彩使人舒适,极简主义风格,不显突兀。

孔雀城-105平-现代风格-厨房.jpg

厨房以白色为主体基调,采用深色地砖及墙砖进行搭配,是典型的现代风格主题,灰色的橱柜搭配棕色墙砖,简约而不失单调。

8610250c6a541f3ede9c82fb67bd45d.png

案例设计师

贺博文

设计师:贺博文

从业时间:20年

设计理念:有限空间、无限艺术

预约设计师

算算你家装修多少钱

报名即享丰厚赠品,品质装修

免费报价
咨询热线:400-656-9909
20190221103704574636.jpg

精品设计案例

20180612134930523248.jpg 服务号二维码.jpg