立即预约 立即预约
免费定制整装家居

免费定制整装家居

一站置家 全程无忧 一省到底
hide.png

当前位置: 首页 > 装修案例效果图 > 中海城

中海城 131平 现代简约风格效果图

收藏
案例风格 现代简约 案例户型 三居 案例面积 131平米
楼盘名称 中海城 设计师 林凤装饰设计师 案例类型 改善性住宅

设计理念:本案的设计风格主要是现代简约,简约而不简单,每一处看似简单的地方背后都有设计师的辛勤付出,每一处皆是良心之作。

客厅
第1张
第2张
第3张
第4张
第5张
卧室
第1张
第2张
卫生间
第1张
儿童房
第1张
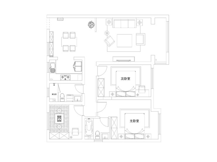
户型图
第1张
  • 案例详情

王诗刚-中海城-131平-现代-客厅1.jpg 王诗刚-中海城-131平-现代-客厅2.jpg 王诗刚-中海城-131平-现代-客厅5.jpg 王诗刚-中海城-131平-现代-客厅4.jpg 王诗刚-中海城-131平-现代-客厅3.jpg

客厅主要是由沙发、柜子、电视机组合成的,凸显客厅简洁大气。深色的柜子和米黄色的地砖相呼应,产生较强的视觉冲击。在原顶面进行吊顶,使空间更有层次感。

王诗刚-中海城-131平-现代-公主房.jpg 主卧室.jpg

主卧室用简洁直白的装饰来体现空间和家具营造的氛围,进而赋予空间独有的个性与宁静。在原顶面上简单的围一层石膏线使空间更具有层次感。

王诗刚-中海城-131平-现代-主卫生间.jpg

在卫生间墙面放个大镜子,可以使视野拓宽。地面采用防水防滑地砖加上洗衣机合理摆放使狭小的空间更具有流动性。

王诗刚-中海城-131平-现代-公主房.jpg

公主房整体采用粉色系为主,给人一种温馨的感觉。加上白色蝴蝶挂饰和窗帘的搭配使整个空间更具有严谨性。房间用粉色系装扮给人一种温暖、纯洁令人对生活充满无限遐想的感觉。

王诗刚-中海城-131平-现代-平面.jpg

案例设计师

林凤装饰设计师

设计师:林凤装饰设计师

从业时间:15年

设计理念:用心感受生活,用设计完善空间,让设计与生活空间完美结合。

预约设计师

算算你家装修多少钱

报名即享丰厚赠品,享半价装修

免费报价
咨询热线:400-656-9909
20190221103704574636.jpg

精品设计案例

20180612134930523248.jpg 服务号二维码.jpg