立即预约 立即预约
免费定制整装家居

免费定制整装家居

一站置家 全程无忧 一省到底
hide.png

当前位置: 首页 > 装修案例效果图 > 荣盛锦绣御府-现代轻奢

荣盛锦绣御府-现代轻奢 150平 轻奢风格效果图

收藏
案例风格 轻奢 案例户型 复式 案例面积 150平米
楼盘名称 荣盛锦绣御府 设计师 白涵琦 案例类型 改善性住宅

设计理念:本案主要采用灰白色和金属线条来进行搭配,每个空间都没有很复杂的东西,但也很好的突出了风格特色。业主是一对夫妇,想要干净的感觉,想要一个女儿房,要有足够的储物空间空间看着很大。

客厅
第1张
第2张
第3张
餐厅
第1张
卧室
第1张
卫生间
第1张
厨房
第1张
阳台
第1张
书房
第1张
儿童房
第1张
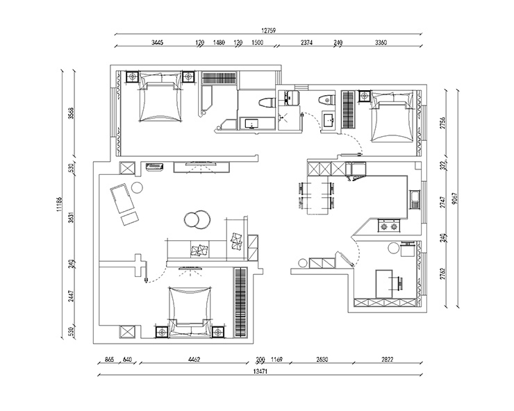
户型图
第1张
客餐厅.jpg 客厅.jpg 首图.jpg

客厅沙发背景墙和电视背景墙都用了墙板做造型,沙发背景墙整体用白色搭配金属钢条,白色会给人很干净的感觉,电视背景墙用了灰色墙板和纹路大胆的理石砖,很有造型特色,灰色的地砖是当前流行的颜色很耐脏,并且用了暖灰色,让空间更加温馨。

餐厅.jpg

餐厅做了一个类似岛台的样子,但是是一个可移动的餐桌靠在酒柜上,与开放式厨房相连接,这样整个客厅空间会被放大。

主卧.jpg

主卧室连接卫生间,做了一个衣帽间隔开主卧室与卫生间空间,并且增加了储物空间暖灰色的壁布让空间更高级。

卫生间.jpg

卫生间运用比较深的暖灰色,纹理很大的墙砖,砌筑壁龛放一些小物件很实用,深木色的浴室柜更有质感。

厨房.jpg

厨房是开放式厨房,为了空间更大更开阔,做了暖灰色的橱柜更好打理一些,并且与地砖想辉映。

阳台.jpg 书房.jpg 儿童房.jpg

女儿房是粉色系,空间很大一面做了衣柜配有开放格,有造型的床头让卧室看起来更有感觉。

户型图.jpg

案例设计师

白涵琦

设计师:白涵琦

从业时间:10年

设计理念:设计实现客户家居梦想

预约设计师

算算你家装修多少钱

报名即享丰厚赠品,享半价装修

免费报价
咨询热线:400-656-9909
20190221103704574636.jpg

精品设计案例

20180612134930523248.jpg 服务号二维码.jpg