立即预约 立即预约
免费定制整装家居

免费定制整装家居

一站置家 全程无忧 一省到底
hide.png

当前位置: 首页 > 装修案例效果图 > 华润置地万象-现代简约

华润置地万象-现代简约 139平 现代简约风格效果图

收藏
案例风格 现代简约 案例户型 四居 案例面积 139平米
楼盘名称 华润置地万象 设计师 仲崇彤 案例类型 改善性住宅

设计理念:以“简化生活’为设计理念,为了满足业主在繁忙的一天工作之后,回到家中可以寻找一份宁静与温暖的诉求。本案客户是一家三口和一个老人。女孩即将上小学,需要有独立的卧室学习居住,对于人口比较多,希望卫生间可以干湿分离,有储物空间。

客厅
第1张
餐厅
第1张
第2张
卧室
第1张
第2张
卫生间
第1张
厨房
第1张
阳台
第1张
休闲区
第1张
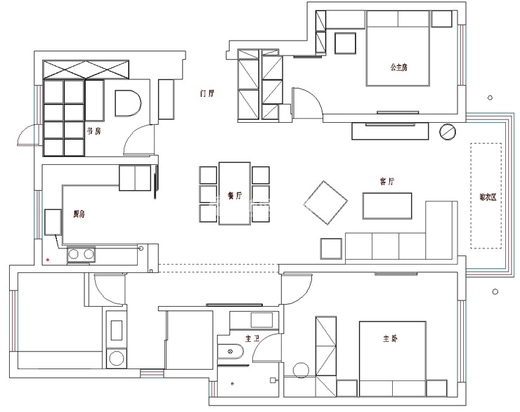
户型图
第1张
华润置地万象府-139平-现代-首图.jpg

客厅电视背景墙采用灰蓝色乳胶漆,沙发背景墙采用护墙板,客厅深浅结合,搭配虚光灯带,营造温馨大气的视觉空间。搭配浅色地砖,不显得头重脚轻,形成视觉冲击力。

华润置地万象府-139平-现代-餐厅.jpg 华润置地万象府-139平-现代-餐厅2.jpg

餐厅吊灯采用艺术吊灯,增加就餐氛围,使餐厅能满足多人聚餐以及日常制作美食,搭配浅灰带暖咖色调的餐椅,温馨感十足。

华润置地万象府-139平-现代-客卧.jpg 华润置地万象府-139平-现代-主卧.jpg

主卧背景选用木格栅与护墙板结合为背景,搭配暖色软装,冷暖呼应,让卧室空间色彩不再单调,和衣柜颜色相呼应,更具时尚感。

华润置地万象府-139平-现代-卫生间.jpg

次卫生间由于空间比较小,考虑居住人口多,做干湿分离,不影响老人早起,与小孩上学同时使用的,更好的把空间利用起来。

华润置地万象府-139平-现代-厨房.jpg

厨房墙面均为爵士白,搭配深色橱柜,靠窗侧预留出放小电器车的空间,增加厨房整理功能。

华润置地万象府-139平-现代-阳台.jpg 华润置地万象府-139平-现代-榻榻米.jpg 华润置地万象府-139平-现代-平面方案.jpg

案例设计师

仲崇彤

设计师:仲崇彤

从业时间:15年

设计理念:设计就是着重于点、线、面的灵活运用,把整个环境营造出家的温馨。

预约设计师

算算你家装修多少钱

报名即享丰厚赠品,享半价装修

免费报价
咨询热线:400-656-9909
20190221103704574636.jpg

精品设计案例

20180612134930523248.jpg 服务号二维码.jpg