立即预约 立即预约
免费定制整装家居

免费定制整装家居

一站置家 全程无忧 一省到底
hide.png

当前位置: 首页 > 装修案例效果图 > 浑河湾

浑河湾 110平 现代简约风格效果图

收藏
案例风格 现代简约 案例户型 一居 案例面积 110平米
楼盘名称 浑河湾 设计师 林凤设计师 案例类型 儿童房

设计理念:美式简约主义是美式古典风格的延续,从1830年美国工业时代的延续和现代的结合演变出一种风格,即现代美式。

客厅
第1张
第2张
第3张
第4张
第5张
第6张
第7张
餐厅
第1张
卧室
第1张
第2张
卫生间
第1张
厨房
第1张
门厅
第1张
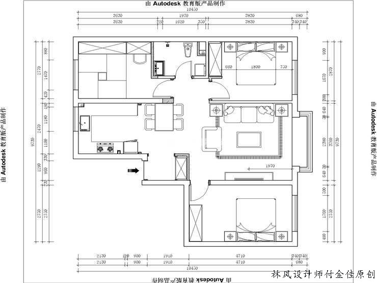
户型图
第1张
浑河湾-110平米-简美-客厅1.jpg 浑河湾-110平米-简美-客厅2.jpg 浑河湾-110平米-简美-客厅3.jpg 浑河湾-110平米-简美-客厅4.jpg 浑河湾-110平米-简美-客厅7.jpg 浑河湾-110平米-简美-客厅5.jpg 浑河湾-110平米-简美-客厅6.jpg

电视背景墙及棚面角线的使用特突出美式的特点同时简化了仿古风格一些复杂的元素,保持了原有的自然,同时,它融入现代简约美式风格的设计,使家具更富有现代的韵味,更加适合现代人的生活节奏,突出体现了一种简约的奢华,居家生活不再单调。根据个人的喜好,搭配一些简洁的美式木质棚面,会提升整个装修的效果。

浑河湾-110平米-简美-餐厅1.jpg

餐厅空间,让整个空间开合有韵,冷暖色过渡和谐,层次自然,舒适温馨。内嵌置物格的设计更添加了空间的实用性。

浑河湾-110平米-简美-次卧1.jpg 浑河湾-110平米-简美-主卧1.jpg

美式家居的卧室布置较为温馨,作为主人的私密空间,主要以功能性和实用舒适为考虑的重点,一般的卧室不设顶灯,多用温馨柔软的成套布艺来装点,同时在软装和用色上非常统一。现代美式多用非炫目灯光,且尽量做到只见光不见灯的效果。

浑河湾-110平米-简美-卫生间1.jpg

美式田园风格在卫生间选材上自由度较大,去繁留简,尽可能扩大空间的实用性。

浑河湾-110平米-简美-厨房1.jpg

简美风格的厨房是少不了功能强大又简单耐用的厨具设备,比如留有能容纳双开门冰箱的宽敞位置和足够的吃饭地方。仿古面的墙砖,橱柜门板用实木门扇来装饰厨房。

浑河湾-110平米-简美-玄关1.jpg 浑河湾-110平米-简美-平面布置图.jpg

案例设计师

林凤设计师

设计师:林凤设计师

从业时间:0年

设计理念:

预约设计师

算算你家装修多少钱

报名即享丰厚赠品,品质装修

免费报价
咨询热线:400-656-9909
20190221103704574636.jpg

精品设计案例

20180612134930523248.jpg 服务号二维码.jpg