立即预约 立即预约
免费定制整装家居

免费定制整装家居

一站置家 全程无忧 一省到底
hide.png

当前位置: 首页 > 装修案例效果图 > 碧桂园太阳城

碧桂园太阳城 136平 现代简约风格效果图

收藏
案例风格 现代简约 案例户型 三居 案例面积 136平米
楼盘名称 碧桂园太阳城 设计师 邵丹 案例类型 改善性住宅

设计理念:现代,时尚和潮流的代表,美观与实用性的完美结合,体现业主对生活的追求和热爱。

客厅
第1张
第2张
第3张
第4张
第5张
餐厅
第1张
卧室
第1张
卫生间
第1张
厨房
第1张
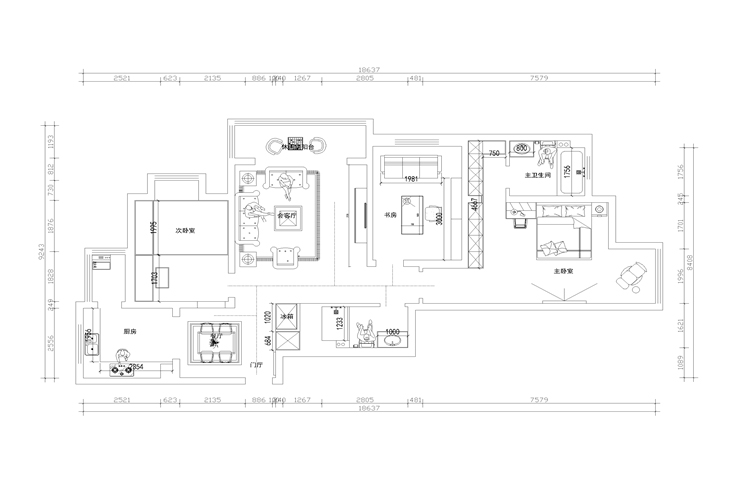
户型图
第1张
碧桂园太阳城-136平-现代风格-客厅 (2).jpg 碧桂园太阳城-136平-现代风格-客厅 (3).jpg 碧桂园太阳城-136平-现代风格-客厅 (4).jpg 碧桂园太阳城-136平-现代风格-客厅.jpg 碧桂园太阳城-136平-现代风格-首图.jpg

客厅选用深色木纹电视背景墙板及灰色沙发背景墙饰面板搭配深褐色皮质沙发,800*800冷色调理石纹理地砖,彰显房子的深沉,大气。深与浅的碰撞,低调又温暖。

碧桂园太阳城-136平-现代风格-餐厅.jpg

餐厅与厨房采用敞开式,极简白色桌面 ,皮质餐椅,倚靠有着世界地图元素的餐厅背景墙,品味不凡。餐吊采用线性灯,简单耐看。

碧桂园太阳城-136平-现代风格-卧室.jpg

主卧室采用不对称护墙板做床头背景墙,棚顶无主灯的设计,别具一格,色彩搭配与客厅相呼应,使人放松,卸下一天的疲劳。

碧桂园太阳城-136平-现代风格-卫生间.jpg

卫生间灰色的墙砖,墙排座便,定制洗手盆和洗衣机台面,提升空间利用率,整个空间宽敞、整洁。

碧桂园太阳城-136平-现代风格-厨房.jpg

厨房采用开放式,白色吊柜与灰色地柜的搭配,简洁又干净,体现厨房的素雅又不俗气。

微信图片_20201220093410.jpg

案例设计师

邵丹

设计师:邵丹

从业时间:8年

设计理念:细节决定品质。

预约设计师

算算你家装修多少钱

报名即享丰厚赠品,享半价装修

免费报价
咨询热线:400-656-9909
20190221103704574636.jpg

精品设计案例

20180612134930523248.jpg 服务号二维码.jpg