立即预约 立即预约
免费定制整装家居

免费定制整装家居

一站置家 全程无忧 一省到底
hide.png

当前位置: 首页 > 装修案例效果图 > 远洋仰山

远洋仰山 120平 现代简约风格效果图

收藏
案例风格 现代简约 案例户型 三居 案例面积 120平米
楼盘名称 远洋仰山 设计师 林凤设计师 案例类型 改善性住宅

设计理念:本作品以简洁的线条,硬朗的棱角,黑白色系的搭配展现现代简约风格的浪漫。

客厅
第1张
第2张
餐厅
第1张
卧室
第1张
第2张
第3张
卫生间
第1张
第2张
厨房
第1张
儿童房
第1张
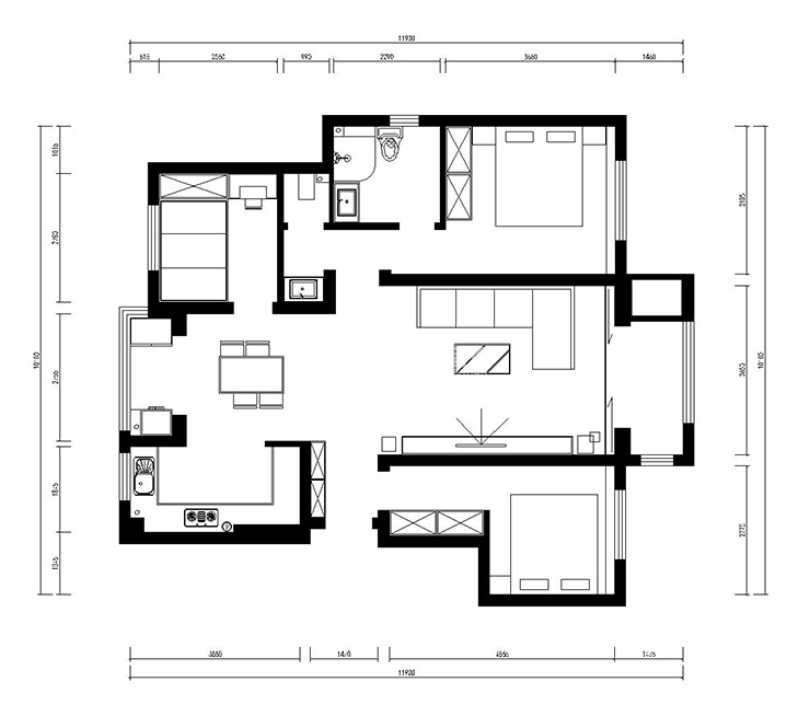
户型图
第1张
首图.jpg 远洋仰山-120平-现代简约-客厅.jpg

客厅采用灰色地砖,搭配白色墙面,少许黑色调装饰,灰色调沙发,色彩相互呼应,简约大气,不失内涵。

远洋仰山-120平-现代简约-餐厅.jpg

餐厅与客厅相连相通,深棕色大理石桌面,搭配纯黑色椅子,与地面灰色调瓷砖相互呼应,装饰线吊使空间更加灵动,温馨。

远洋仰山-120平-现代简约-次卧.jpg 远洋仰山-120平-现代简约-次卧2.jpg 远洋仰山-120平-现代简约-主卧.jpg

卧室的设计更多的注重了空间的美观性和实用性,空间设计上既注重储物又搭配整体的风格,洁白的柜面与灰色调的墙面形成鲜明对比, 棕色的地板又从中调和,使色彩搭配更具现代主义。

远洋仰山-120平-现代简约-客卫.jpg 远洋仰山-120平-现代简约-主卫.jpg

浅灰色调的墙砖选择既与地面色调相互呼应,又可以在视觉上使墙面延伸至卫生间,使卫生间在视觉上变的更大更宽,而不会应为东西多显的拥挤。

远洋仰山-120平-现代简约-厨房.jpg

厨房墙砖的选择是亮点,条纹白砖,视觉上首先会给人无线的延伸感,使空间变的更大,色彩上使房间看上去干净整洁,灰色的柜面又与地砖搭配,不会使厨房那么突兀。

远洋仰山-120平-现代简约-次卧.jpg

客卧面积较小,为满足小面积更多的功能需求,本案把次卧做榻榻米,使其狭小的空间,功能俱全,学习,休息,全部满足

远洋仰山-120平-现代简约-平面图.jpg

案例设计师

林凤设计师

设计师:林凤设计师

从业时间:0年

设计理念:

预约设计师

算算你家装修多少钱

报名即享丰厚赠品,享半价装修

免费报价
咨询热线:400-656-9909
20190221103704574636.jpg

精品设计案例

20180612134930523248.jpg 服务号二维码.jpg