立即预约 立即预约
免费定制整装家居

免费定制整装家居

一站置家 全程无忧 一省到底
hide.png

当前位置: 首页 > 装修案例效果图 > 藏珑白塔湾里

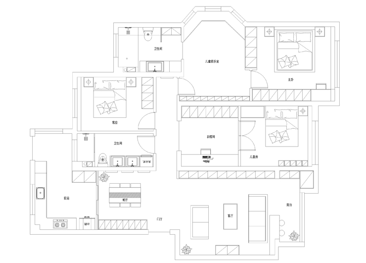
藏珑白塔湾里 185平 现代简约风格效果图

收藏
案例风格 现代简约 案例户型 四居 案例面积 185平米
楼盘名称 藏珑白塔湾里 设计师 齐逢辉 案例类型 儿童房

设计理念:简约不等于简单,现代简约风格的住宅装修设计是经过创新得出的设计和思路的延展,并不是平常的“堆砌”和简单的“摆放”,功能主义完美植入艺术的美感,让居住者身心感受美好!

案例设计师

齐逢辉

设计师:齐逢辉

从业时间:12年

设计理念:设计为王,只有新颖的设计才会在大浪淘沙中闪烁出与众不同的光芒。

预约设计师

算算你家装修多少钱

报名即享丰厚赠品,品质装修

免费报价
咨询热线:400-656-9909
20190221103704574636.jpg

精品设计案例

20180612134930523248.jpg 服务号二维码.jpg