立即预约 立即预约
免费定制整装家居

免费定制整装家居

一站置家 全程无忧 一省到底
hide.png

当前位置: 首页 > 装修案例效果图 > 五矿世家金城

五矿世家金城 125平 轻奢风格效果图

收藏
案例风格 轻奢 案例户型 三居 案例面积 125平米
楼盘名称 五矿世家金城 设计师 林凤设计师 案例类型 改善性住宅

设计理念:打造拒绝庸俗的一种生活态度和舒适的私人居家空间

客厅
第1张
第2张
餐厅
第1张
卧室
第1张
第2张
卫生间
第1张
第2张
厨房
第1张
书房
第1张
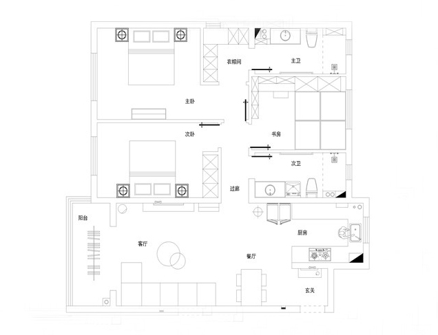
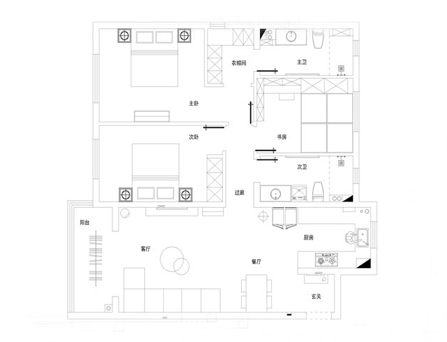
户型图
第1张
第2张
五矿世家金城-125平-现代轻奢风格-客厅1.jpg 五矿世家金城-125平-现代轻奢风格-客厅2.jpg

电视背景选用了1200m*2400mm大板砖上墙效果,两侧采用了硬包材质,使得整面墙外观看上去更简洁大气,整体,满足了审美需求的同时也起到了材质与色彩的视觉反差碰撞。

五矿世家金城-125平-现代轻奢风格-餐厅.jpg

餐桌选用了灰色天然石材台面,餐厅吊灯选用了金属LED线条灯,使餐桌与灯光在装饰表达手法上完美的结合,同一功能有明有暗,刚柔并济。

五矿世家金城-125平-现代轻奢风格-次卧.jpg 五矿世家金城-125平-现代轻奢风格-主卧.jpg

床头背景的深灰色壁纸使整个卧室给人感觉稳重大气,黑白灰床品与床头壁纸颜色呼应完美结合,窗帘的一抹淡黄色也活跃了整个卧室的气氛。

五矿世家金城-125平-现代轻奢风格-次卫.jpg 五矿世家金城-125平-现代轻奢风格-主卫.jpg

抛除传统意义的卫生间感觉,舍弃了传统的明亮与庸俗,深灰色地砖上墙的墙面质感与火烧板石材台面给人一种回归自然深处的感觉,整个墙面以深色为主,照明做成了嵌入隐藏式设计,整个空间不见光来却与光相随。

五矿世家金城-125平-现代轻奢风格-厨房.jpg

纯白色上柜与原木色下柜的橱柜颜色显得整洁有艺术感,白色的石材台面也显得厨房操作区的空间感被放大,与原木色下柜产生对比反差,也呼应了厨房上柜的白色,环节了深色电器带来的压抑感,使得整个空间内涵有艺术。

五矿世家金城-125平-现代轻奢风格-书房.jpg

白色与原木色柜体门板结合,左侧书柜原木色柜体搭配黑色窄边玻璃门,内嵌虚光灯槽与书桌上方的开放格形成对比,一虚一实满足了收纳空间的同时也显得空间干净整洁。

五矿世家金城-125平-现代轻奢风格-户型图.jpg 五矿世家金城-125平-现代轻奢风格-户型图.jpg

案例设计师

林凤设计师

设计师:林凤设计师

从业时间:7年

设计理念:

预约设计师

算算你家装修多少钱

报名即享丰厚赠品,享半价装修

免费报价
咨询热线:400-656-9909
20190221103704574636.jpg

精品设计案例

20180612134930523248.jpg 服务号二维码.jpg