立即预约 立即预约
免费定制整装家居

免费定制整装家居

一站置家 全程无忧 一省到底
hide.png

当前位置: 首页 > 装修案例效果图 > 九如溪谷

九如溪谷 350平 现代简约风格效果图

收藏
案例风格 现代简约 案例户型 四居 案例面积 350平米
楼盘名称 九如溪谷 设计师 林凤设计师 案例类型 改善性住宅

设计理念:本案为意式极简风格,简约不简单是本案主题,沿用自然理石纹路,实木纹路来搭配整体室内空间。

客厅
第1张
餐厅
第1张
第2张
卧室
第1张
卫生间
第1张
儿童房
第1张
第2张
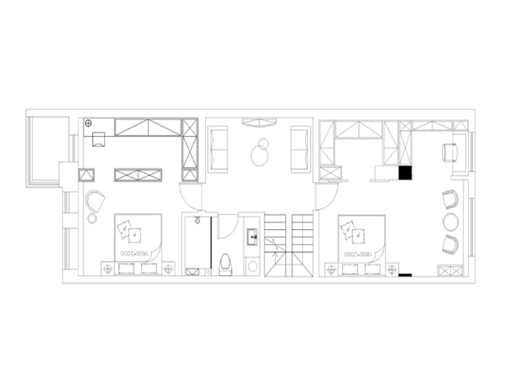
户型图
第1张
第2张
第3张
九如溪谷-350平-意式极简-客厅.jpg

本案整体以黑白灰的色调呈现,客厅空间:沙发背景墙墙板与硬包的衔接,彰显现代风格不对称的结构感。电视背景整体抽缝大理石衔接与台阶一致的理石,使空间衔接紧密。

九如溪谷-350平-意式极简-餐厅.jpg 九如溪谷-350平-意式极简-餐厅2.jpg 九如溪谷-350平-意式极简-主卧.jpg 九如溪谷-350平-意式极简-主卫.jpg 九如溪谷-350平-意式极简-男孩房.jpg 九如溪谷-350平-意式极简-女儿房.jpg

儿童房的设计不管从色彩还是功能,都更以孩子本身出发考虑。主卧更加的深沉,材质更加的厚重,结构感强烈的背景,反应出不同寻常的设计特点。

九如溪谷-350平-意式极简-三层.jpg 九如溪谷-350平-意式极简-二层.jpg 九如溪谷-350平-意式极简-一层.jpg

案例设计师

林凤设计师

设计师:林凤设计师

从业时间:7年

设计理念:空间是生活的一部分,但我们设计一个空间时要考虑的是生活的全部。

预约设计师

算算你家装修多少钱

报名即享丰厚赠品,品质装修

免费报价
咨询热线:400-656-9909
20190221103704574636.jpg

精品设计案例

20180612134930523248.jpg 服务号二维码.jpg