立即预约 立即预约
免费定制整装家居

免费定制整装家居

一站置家 全程无忧 一省到底
hide.png

当前位置: 首页 > 装修案例效果图 > 水榭花都

水榭花都 100平 现代简约风格效果图

收藏
案例风格 现代简约 案例户型 二居 案例面积 100平米
楼盘名称 水榭花都 设计师 林凤设计师 案例类型 婚房

设计理念:简单既是生活,生活回归简单,才能更快乐。这是客户的感悟。本案所以用简单的材质,简单的拼奏,呈现出简单的生活,而实际却不简约。

客厅
第1张
第2张
餐厅
第1张
卧室
第1张
卫生间
第1张
过廊
第1张
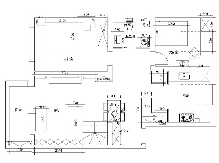
户型图
第1张
水榭花都-100平米-现代风格-客厅.jpg 水榭花都-100平米-现代风格-客厅1.jpg

客厅房顶结构是尖顶,利用原有顶棚的结构做出划分,并没有去采用石膏板去做处理,反而保留了房屋本质的样子。用白色及灰色进行空间的层次划分,整个空间客厅保留挑空。

水榭花都-100平米-现代风格-餐厅.jpg

餐厅及过道区域是整个房子的高空,所以我把夹层设在中间,满足二楼的空间高度的同时,也满足了一楼的空间告诉,利用玄关柜及过道空间增加了一个餐厅区域。

水榭花都-100平米-现代风格-主卧室.jpg 水榭花都-100平米-现代风格-卫生间.jpg

卫生间采用内白灰色,质地不温不跳,舒适高冷相宜。

水榭花都-100平米-现代风格-过道.jpg 水榭花都-100平米-现代风格-户型图.jpg

案例设计师

林凤设计师

设计师:林凤设计师

从业时间:8年

设计理念:设计是生活的延展,来于生活,归于生活。

预约设计师

算算你家装修多少钱

报名即享丰厚赠品,品质装修

免费报价
咨询热线:400-656-9909
20190221103704574636.jpg

精品设计案例

20180612134930523248.jpg 服务号二维码.jpg