立即预约 立即预约
免费定制整装家居

免费定制整装家居

一站置家 全程无忧 一省到底
hide.png

当前位置: 首页 > 装修案例效果图 > 尚景.新世界

尚景.新世界 290平 美式风格效果图

收藏
案例风格 美式 案例户型 四居 案例面积 290平米
楼盘名称 尚景.新世界 设计师 林凤设计师 案例类型 改善性住宅

设计理念:屋主是一对新婚夫妻,喜欢美式轻奢风格,这套房是这对小夫妻买来作婚房使用的,由于空间过大很多空间都有很多不协调浪费的空间,业主与我沟通时表示,希望可以打通原本厨房餐厅的空间,改造为中西厨结合的方式与此同时深度挖掘空间的更多可能性。

客厅
第1张
第2张
餐厅
第1张
第2张
卧室
第1张
卫生间
第1张
儿童房
第1张
第2张
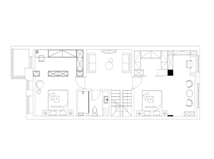
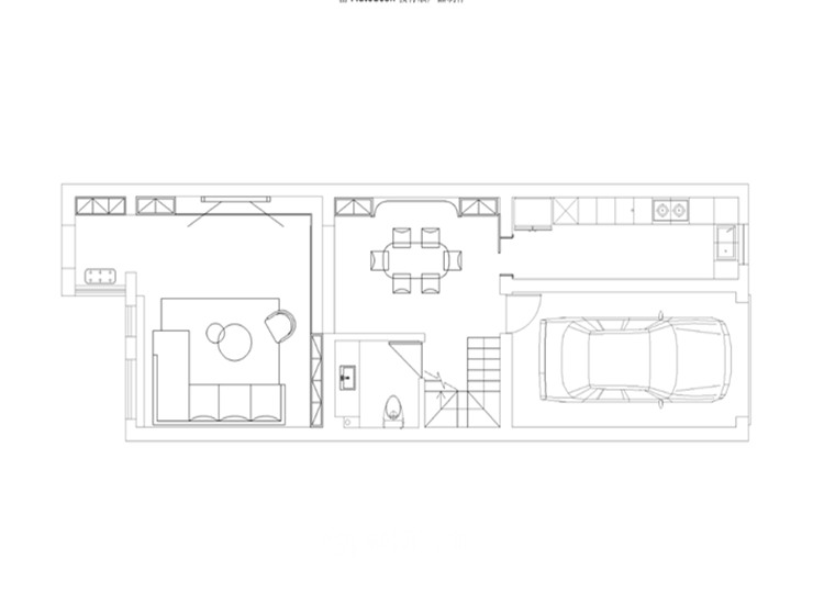
户型图
第1张
第2张
第3张
  • 案例详情

九如溪谷-350平-意式极简-电视.jpg 九如溪谷-350平-意式极简-客厅.jpg

电视背景墙采用定制柜镶入式设计,整体简化了客厅空间,和传统的电视柜摆放不同,整个空间给人一种开阔大气的感觉。

九如溪谷-350平-意式极简-餐厅.jpg 九如溪谷-350平-意式极简-餐厅2.jpg 九如溪谷-350平-意式极简-主卧.jpg

卧室干净简洁以整体风格为主弱化一些高级的感觉,整体色调沉稳而不失活力充盈,低调奢华的气氛让整个空间更加添光溢彩。

九如溪谷-350平-意式极简-主卫.jpg 九如溪谷-350平-意式极简-男孩房.jpg 九如溪谷-350平-意式极简-女儿房.jpg 九如溪谷-350平-意式极简-二层.jpg 九如溪谷-350平-意式极简-三层.jpg 九如溪谷-350平-意式极简-一层.jpg

案例设计师

林凤设计师

设计师:林凤设计师

从业时间:10年

设计理念:室内设计是是人与环境的联系,是人类艺术与物质文明的结合

预约设计师

算算你家装修多少钱

报名即享丰厚赠品,品质装修

免费报价
咨询热线:400-656-9909
20190221103704574636.jpg

精品设计案例

20180612134930523248.jpg 服务号二维码.jpg