立即预约 立即预约
免费定制整装家居

免费定制整装家居

一站置家 全程无忧 一省到底
hide.png

当前位置: 首页 > 装修案例效果图 > 旭辉东樾城

旭辉东樾城 650平 美式风格效果图

收藏
案例风格 美式 案例户型 五居 案例面积 650平米
楼盘名称 旭辉东樾城 设计师 林凤设计师 案例类型 改善性住宅

设计理念:本案为美式古典主义,以古典的美式元素,搭配深红木家具,打造古典主义别样情怀。

客厅
第1张
餐厅
第1张
卧室
第1张
第2张
厨房
第1张
休闲区
第1张
第2张
第3张
门厅
第1张
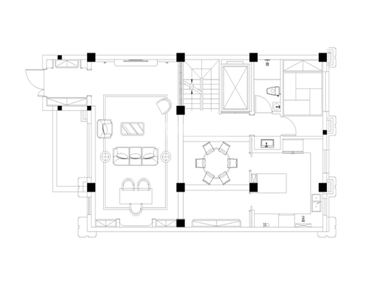
户型图
第1张
旭辉东樾城-650平-经典美式-客厅首图.jpg

一楼入户,引入眼帘的是独立玄关,壁龛鞋柜一应俱全。开间7米大厅格外大气,客厅搭配书房,让书香气息,蔓延开来。餐厅圆桌居中,天地对应。整体美式的元素颇为丰富,罗马柱,柱基包口,石膏灯盘。无处不彰显美式的大气磅礴。

旭辉东樾城-650平-经典美式-餐厅.jpg 旭辉东樾城-650平-经典美式-客卧.jpg 旭辉东樾城-650平-经典美式-主卧.jpg

2~4层全部为卧室私密空间,满足人口前提,还要为孩子未来打算,预留四楼套房备用。风格颜色依然延续美式风格特点,红木墙板,回形实木地板。。。。

旭辉东樾城-650平-经典美式-厨房.jpg

厨房采用双动线进入,岛台居中,让做饭成为娱乐。

旭辉东樾城-650平-经典美式-酒吧.jpg 旭辉东樾城-650平-经典美式-娱乐.jpg 旭辉东樾城-650平-经典美式-影音.jpg 旭辉东樾城-650平-经典美式-玄关.jpg 旭辉东樾城-650平-经典美式-平面.jpg

案例设计师

林凤设计师

设计师:林凤设计师

从业时间:7年

设计理念:空间是生活的一部分,但我们设计一个空间时要考虑的是生活的全部。

预约设计师

算算你家装修多少钱

报名即享丰厚赠品,品质装修

免费报价
咨询热线:400-656-9909
20190221103704574636.jpg

精品设计案例

20180612134930523248.jpg 服务号二维码.jpg