立即预约 立即预约
免费定制整装家居

免费定制整装家居

一站置家 全程无忧 一省到底
hide.png

当前位置: 首页 > 装修案例效果图 > 新北花园

新北花园 148平 现代简约风格效果图

收藏
案例风格 现代简约 案例户型 三居 案例面积 148平米
楼盘名称 新北花园 设计师 丁强 案例类型 改善性住宅

设计理念:新北花园简约现代风格的设计理念是以舒适美观性为主,让整体效果最大化,满足居住者的要求,让设计真真正正的走进生活。

客厅
第1张
第2张
餐厅
第1张
第2张
卧室
第1张
卫生间
第1张
第2张
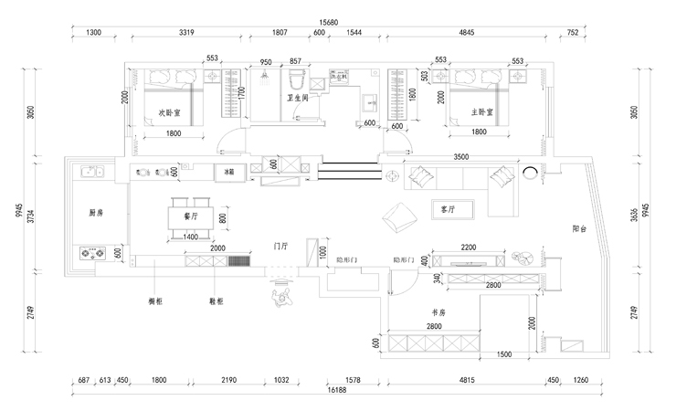
户型图
第1张
  • 案例详情

新北花园-148平-轻奢风格-客厅1.jpg 新北花园-148平-轻奢风格-首图.jpg

客厅地面采用800*800灰色云石系列瓷砖,电视背景墙和餐厅背景墙均采用了造型,电视背景墙采用墙板和理石,沙发背景墙则采用了硬包加金属条修饰,客厅的吊顶也采用铜色碳钢条做修饰,这样吊顶和沙发背景形成了一体。

新北花园-148平-轻奢风格-餐厅.jpg 新北花园-148平-轻奢风格-餐厅1.jpg

餐厅是跟厨房在一体的,餐厅在厨房的中间,厨房采用石膏板平棚,因为餐厅厨房是跟客厅门厅连在一体的

新北花园-148平-轻奢风格-主卧室.jpg 新北花园-148平-轻奢风格-卫生间.jpg 新北花园-148平-轻奢风格-卫生间1.jpg

卫生间设计了干湿两个分区,里面是湿区,外面为干区,卫生间内由于光线比较暗没有窗户,墙砖则采用了浅灰色,干区光线比较好,干区采用深灰色瓷砖,干区浴室柜都用采用定制,这样整体的效果会更加突出。

新北花园-148平-轻奢风格-平面图.jpg

案例设计师

丁强

设计师:丁强

从业时间:8年

设计理念:用心观察生活,感悟人生真谛,让设计与生活互动

预约设计师

算算你家装修多少钱

报名即享丰厚赠品,享半价装修

免费报价
咨询热线:400-656-9909
20190221103704574636.jpg

精品设计案例

20180612134930523248.jpg 服务号二维码.jpg