立即预约 立即预约
免费定制整装家居

免费定制整装家居

一站置家 全程无忧 一省到底
hide.png

当前位置: 首页 > 装修案例效果图 > 华发全运首府

华发全运首府 96平 现代简约风格效果图

收藏
案例风格 现代简约 案例户型 三居 案例面积 96平米
楼盘名称 华发全运首府 设计师 林凤装饰设计 案例类型 儿童房

设计理念:华发全运首府现代装修采用现代简约的设计风格,干净利落的线条,低调简约,透露着悠悠静谧的的氛围。因楼层交底,所以以浅颜色为主要颜色。

客厅
第1张
第2张
第3张
餐厅
第1张
第2张
卧室
第1张
第2张
卫生间
第1张
厨房
第1张
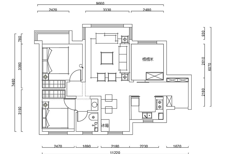
户型图
第1张
  • 案例详情

S2-华发全运首府-96平-现代-客厅.jpg S2-华发全运首府-96平-现代-客厅2.jpg S2-华发全运首府-96平-现代-首图.jpg

客厅电视背景墙采用的是大地砖上墙并结合金属线条,电视柜采用的深色大理石定制,让空间更有拉伸感。软装窗帘与沙发靠垫等互相搭配,让整个空间更协调统一

S2-华发全运首府-96平-现代-餐厅.jpg S2-华发全运首府-96平-现代-餐厅2.jpg

客餐厅相互结合,相互呼应,并准备了餐边柜的位置,让用餐更加方便。并且在厨房和餐厅间做了玻璃窗,让两个空间都更加明亮

S2-华发全运首府-96平-现代-北卧室.jpg S2-华发全运首府-96平-现代-主卧室.jpg

卧室做嵌入式衣柜,整体空间更整体。飘窗保留,平时可以在飘窗喝茶赏景。

S2-华发全运首府-96平-现代-卫生间.jpg

卫生间是干湿分离设计,干区定制洗漱柜,整体嵌入,格局更加规整,并且下水采用墙排水方式,地面更加干净整洁。湿区只有坐便和花洒,在坐便处增加了左边伴侣,方便后期的打扫冲洗。

S2-华发全运首府-96平-现代-厨房.jpg

都说厨房是女人的天下,但是本案例在厨房和餐厅间做了可推拉玻璃窗,这样在阿姨做饭时,叔叔可以选择另一种方式陪伴在身边,同时也不会觉得厨房拥挤。

S2-华发全运首府-96平-现代-平面图.jpg

案例设计师

林凤装饰设计

设计师:林凤装饰设计

从业时间:6年

设计理念:因生活而设计,因设计而美好。

预约设计师

算算你家装修多少钱

报名即享丰厚赠品,享半价装修

免费报价
咨询热线:400-656-9909
20190221103704574636.jpg

精品设计案例

20180612134930523248.jpg 服务号二维码.jpg