立即预约 立即预约
免费定制整装家居

免费定制整装家居

一站置家 全程无忧 一省到底
hide.png

当前位置: 首页 > 装修案例效果图 > 诗波特

诗波特 150平 现代简约风格效果图

收藏
案例风格 现代简约 案例户型 三居 案例面积 150平米
楼盘名称 诗波特 设计师 林凤装饰全案设计师 案例类型 改善性住宅

设计理念:本案设计主要体现设计在于色彩和文化内涵的结合,一切随心,用心去感悟空间设计带来的温馨极简的感觉。

客厅
第1张
第2张
餐厅
第1张
卧室
第1张
卫生间
第1张
厨房
第1张
门厅
第1张
第2张
过廊
第1张
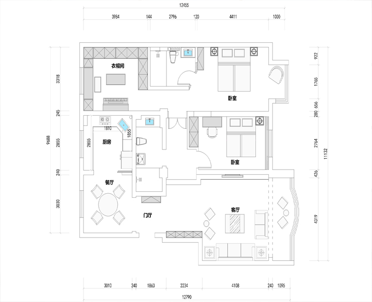
户型图
第1张
  • 案例详情

S1-鄂伟哲-诗波特-150平-现代风格-客厅.jpg S1-鄂伟哲-诗波特-150平-现代风格-首图.jpg

客厅没有做过多的吊棚设计,主要是体现护墙板造型及灯光层次感,灰色的背景下面有一条理石造型地台,直接贯穿半跃楼梯第一步,时尚,大气,简约而不简单。

S1-鄂伟哲-诗波特-150平-现代风格-餐厅.jpg

餐厅很喜欢圆形的餐桌设计,喜欢家人在一起围着用餐的感觉,白色的餐台,搭配各种颜色的菜品,头上的艺术线条灯的照明下,更加增进食欲,餐厅效果简单,黑色线条的窗帘杆显得格外有立体感。北侧窗外是一片绿油油的草坪,所以只放了一层窗纱,保证了北侧的透光性及质感的体现。

S1-鄂伟哲-诗波特-150平-现代风格-卧室.jpg

主卧室背景墙是采用乳白色墙板及木纹纹理,这么搭配是一个女服装设计师对线条及质感的要求,从事行业多年,最终还是喜欢自己的家是色块组合的纯净地带。

S1-鄂伟哲-诗波特-150平-现代风格-卫生间.jpg

多考虑了一下整体颜色搭配,毕竟卫生间还是以功能为主,深色的墙壁与白色洁具的结合。立体,规整,易打理。

S1-鄂伟哲-诗波特-150平-现代风格-厨房.jpg

厨房墙面采用灰色理石纹理瓷砖,自然通透,配搭黑色窄框通透灰玻璃。若隐若现,白与灰的柜体效果,沉稳与通透的体现。厨房是个火热的地带,这种颜色的搭配,看起来清爽怡人,赋予做饭的乐趣。

S1-鄂伟哲-诗波特-150平-现代风格-门厅.jpg S1-鄂伟哲-诗波特-150平-现代风格-门厅2.jpg S1-鄂伟哲-诗波特-150平-现代风格-过厅.jpg

过廊入户的地方彩用略略带有金色色系的墙面。灯光照明做一个聚光过廊入户的地方彩用略略带有金色色系的墙面。灯光照明做一个聚光射灯,射到墙面上更加具有凸显背景的感觉。

S1-鄂伟哲-诗波特-150平-现代风格-户型图.jpg

案例设计师

林凤装饰全案设计师

设计师:林凤装饰全案设计师

从业时间:8年

设计理念:设计改变生活

预约设计师

算算你家装修多少钱

报名即享丰厚赠品,品质装修

免费报价
咨询热线:400-656-9909
20190221103704574636.jpg

精品设计案例

20180612134930523248.jpg 服务号二维码.jpg