立即预约 立即预约
免费定制整装家居

免费定制整装家居

一站置家 全程无忧 一省到底
hide.png

当前位置: 首页 > 装修案例效果图 > 伯爵源筑

伯爵源筑 119平 现代简约风格效果图

收藏
案例风格 现代简约 案例户型 三居 案例面积 119平米
楼盘名称 伯爵源筑 设计师 孙安强 案例类型 改善性住宅

设计理念:本方案的亮点是家具与空间色调的运用。强烈的科技感与时尚感呼之欲出。公共空间以黑白色及大地棕色为主色调。后现代表现最为突出的是,追求时尚与潮流,主要强调的是主张新旧融合,兼容并蓄的立场,因此既显夸张又显含蓄

客厅
第1张
第2张
第3张
餐厅
第1张
第2张
卧室
第1张
第2张
卫生间
第1张
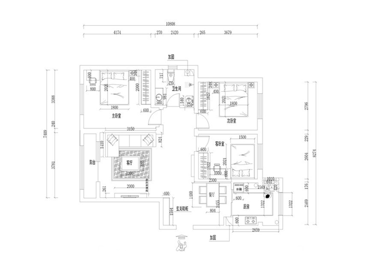
户型图
第1张
  • 案例详情

孙安强-伯爵源筑-119平-现代-客厅2.jpg 孙安强-伯爵源筑-119平-现代-客厅.jpg 孙安强-伯爵源筑-119平-现代-客厅1.jpg

现代强调的是空间的延续性,但又不拘泥于传统的逻辑思维方式,将一些呆板构件的抽象形式以新的手法组合在一起。电视背景墙采用是石膏板与壁纸的搭配,黑白色调为主,是整个客厅的亮点,吊顶做了简单的造型

孙安强-伯爵源筑-119平-现代-餐厅2.jpg 孙安强-伯爵源筑-119平-现代-餐厅.jpg

餐厅是家居生活的心脏,不仅要美观,更重要的实用性,整体性。餐厅的灯光很重要既不能太强又不能太弱,灯光则以温馨和暖的黄色为基调,顶部做了简单的吊顶。背景墙选用装饰画进行装饰,更加突出现代这一风格。

孙安强-伯爵源筑-119平-现代-卧室.jpg 孙安强-伯爵源筑-119平-现代-次卧.jpg

注重居室空间的布局和使用功能的完美结合。家居中的线条不但柔美,也具有节奏感,卧室背景墙用石膏线做的造型,再搭配上软包和壁纸材料的使用,整个卧室呈现出一种高贵,典雅。。

孙安强-伯爵源筑-119平-现代-卫生间.jpg

卫生间也是室内设计中的一个重要部分。这套室内设计中的卫生间设计趋向的原则干净、简洁。整体的布置采用黄色为主基调,四周墙面贴上黄色瓷砖,让整个卫生间呈现出简洁、干净的感觉。这样的感觉氛围使得在家休息沐浴时是更快乐的舒心享受过程。

孙安强-伯爵源筑-119平-现代-户型图.jpg

案例设计师

孙安强

设计师:孙安强

从业时间:10年

设计理念:生活是创意的来源,创意源于文化,创意源于自己

预约设计师

算算你家装修多少钱

报名即享丰厚赠品,品质装修

免费报价
咨询热线:400-656-9909
20190221103704574636.jpg

精品设计案例

20180612134930523248.jpg 服务号二维码.jpg