立即预约 立即预约
免费定制整装家居

免费定制整装家居

一站置家 全程无忧 一省到底
hide.png

当前位置: 首页 > 装修案例效果图 > 五矿世家金城

五矿世家金城 105平 工业风风格效果图

收藏
案例风格 工业风 案例户型 三居 案例面积 105平米
楼盘名称 五矿世家金城 设计师 林凤装饰设计师 案例类型 改善性住宅

设计理念:设计师整体设计理念: 本案装修风格为工业风格,。
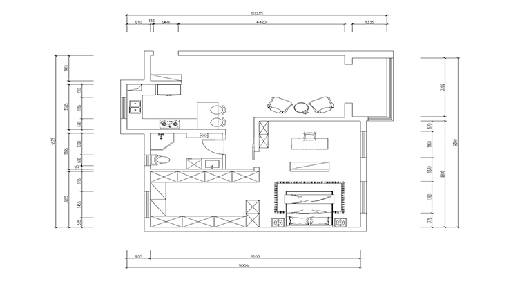
户型分析:三室两厅一厨一卫
优点:房屋整体规划良好,每个空间面积合适,功能划分合理。
缺点:卧室面积小,客厅开间比较小。

客厅
第1张
第2张
卧室
第1张
卫生间
第1张
厨房
第1张
书房
第1张
第2张
衣帽间
第1张
门厅
第1张
户型图
第1张
  • 案例详情

五矿世家金城-工业风格-客厅.jpg 五矿世家金城-工业风格-首图.jpg

五矿世家金城105平三室两厅工业风林凤装饰的客厅取消沙发和电视,电视方向背景墙过长,采用整体墙面一种材质处理,水泥压力板,留出抽缝,使空间有立体感,沙发背景墙采用文化石局部造型,增加工业元素,两侧采用灯带,渲染气氛。

五矿世家金城-工业风格-主卧.jpg

五矿世家金城105平三室两厅工业风林凤装饰的主卧三室改为一室,增加衣帽间和书房,中间用墙体砌筑作为隔断,划分区域,主卧墙面增加壁灯,业主晚上有看书的习惯,采用可旋转壁灯。

五矿世家金城-工业风格-卫生间.jpg

五矿世家金城105平三室两厅工业风林凤装饰的卫生间

五矿世家金城-工业风格-厨房.jpg

五矿世家金城105平三室两厅工业风林凤装饰的厨房

五矿世家金城-工业风格-书房01.jpg 五矿世家金城-工业风格-书房02.jpg

五矿世家金城105平三室两厅工业风林凤装饰的书房

五矿世家金城-工业风格-衣帽间.jpg

五矿世家金城105平三室两厅工业风林凤装饰的衣帽间

五矿世家金城-工业风格-玄关过道.jpg

五矿世家金城105平三室两厅工业风林凤装饰的玄关

五矿世家金城135平-轻奢风格-平面0.jpg

户型图

案例设计师

林凤装饰设计师

设计师:林凤装饰设计师

从业时间:4年

设计理念:将设计融于人性,将家居带入悠闲自在的情境

预约设计师

算算你家装修多少钱

报名即享丰厚赠品,品质装修

免费报价
咨询热线:400-656-9909
20190221103704574636.jpg

精品设计案例

20180612134930523248.jpg 服务号二维码.jpg