立即预约 立即预约
免费定制整装家居

免费定制整装家居

一站置家 全程无忧 一省到底
hide.png

当前位置: 首页 > 装修案例效果图 > 澳海御景苑

澳海御景苑 210平 现代简约风格效果图

收藏
案例风格 现代简约 案例户型 五居 案例面积 210平米
楼盘名称 澳海御景苑 设计师 齐逢辉 案例类型 改善性住宅

设计理念:后现代源于现代加黑暗色系的搭配,彰显时尚、大气并含有舒适高雅的风格

客厅
第1张
第2张
餐厅
第1张
卧室
第1张
第2张
卫生间
第1张
厨房
第1张
第2张
儿童房
第1张
休闲区
第1张
第2张
门厅
第1张
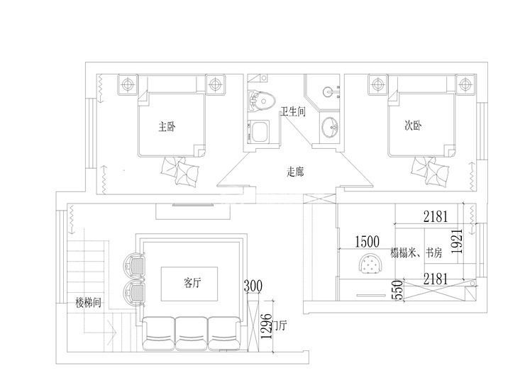
户型图
第1张
  • 案例详情

澳海御景苑-210平-后现代-客厅.jpg 澳海御景苑-210平-后现代-首图.jpg

澳海御景苑210平6居室后现代风格林凤装饰的客厅主要以深色主色为主,家具选用灰色以及黑色进行搭配,空间内巧妙假如对比色,因业主两人对家的颜色特别重视,希望回到家有舒适的大气环境,所以这种搭配比较适合。

澳海御景苑-210平-后现代-餐厅.jpg

澳海御景苑210平6居室后现代风格林凤装饰的餐厅区域与客厅区分区,选用了深色岛台餐桌和灰咖色布艺餐椅,墙面采用咖色墙布,添加黑色钢条让餐厅的整个空间显的现代。

澳海御景苑-210平-后现代-主卧室.jpg 澳海御景苑-210平-后现代-榻榻米.jpg

澳海御景苑210平6居室后现代风格林凤装饰的卧室空间采用白色墙板、深色墙布,搭配皮质床彰显大气、现代、舒适空间。

澳海御景苑-210平-后现代-卫生间.jpg

澳海御景苑210平6居室后现代风格林凤装饰的卫生间采用的深灰色地砖上墙,给人感觉现代并且大气,选用蓝色成品手盆看着时尚又美观,玻璃浴屏的应用起到干湿分离。

澳海御景苑-210平-后现代-厨房.jpg 澳海御景苑-210平-后现代-厨房书房.jpg

澳海御景苑210平6居室后现代风格林凤装饰的厨房是开放式厨房,厨房面积比较大,采用深白色瓷砖与深色橱柜有强烈的对比色彰显现代。

澳海御景苑-210平-后现代-儿童房.jpg

澳海御景苑210平6居室后现代风格林凤装饰的儿童房

澳海御景苑-210平-后现代-影音室.jpg 澳海御景苑-210平-后现代-影音室1.jpg

澳海御景苑210平6居室后现代风格林凤装饰的影音室

澳海御景苑-210平-后现代-门厅.jpg

澳海御景苑210平6居室后现代风格林凤装饰的玄关

澳海御景苑-210平-后现代-平面图.jpg

户型图

案例设计师

齐逢辉

设计师:齐逢辉

从业时间:12年

设计理念:设计为王,只有新颖的设计才会在大浪淘沙中闪烁出与众不同的光芒。

预约设计师

算算你家装修多少钱

报名即享丰厚赠品,享半价装修

免费报价
咨询热线:400-656-9909
20190221103704574636.jpg

精品设计案例

20180612134930523248.jpg 服务号二维码.jpg