立即预约 立即预约
免费定制整装家居

免费定制整装家居

一站置家 全程无忧 一省到底
hide.png

当前位置: 首页 > 装修案例效果图 > 华润二十四城

华润二十四城 95平 现代简约风格效果图

收藏
案例风格 现代简约 案例户型 二居 案例面积 95平米
楼盘名称 华润二十四城 设计师 林凤设计师 案例类型 改善性住宅

设计理念:本案以现代元素为主,采用理石质感的石材,搭配浅色木质定制类家具,配以富有质感的软装饰品,打造一种现代时尚简洁的居住空间

客厅
第1张
第2张
餐厅
第1张
卧室
第1张
第2张
第3张
第4张
卫生间
第1张
第2张
厨房
第1张
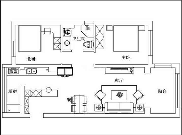
户型图
第1张
  • 案例详情

华润二十四城-95平-现代风格-客厅.jpg 首图.jpg

华润二十四城95平两室两厅现代简约风格林凤装饰的客厅以简洁的手法设计,简单的石膏线,搭配白色理石瓷砖,墙壁局部悬挂了一些富有现代风格的画作,丰富了整体的颜色背景,背景墙采用了整块的大理石纹理瓷砖,简单大方且便于清理。

华润二十四城-95平-现代风格-餐厅.jpg

华润二十四城95平两室两厅现代简约风格林凤装饰的餐厅占地面积比较小,所以采用了较为简单的餐桌,十分节省空间,不会显得杂乱,餐灯取餐桌中心,把区域进行了合理的划分。

华润二十四城-95平-现代风格-北卧2.jpg 华润二十四城-95平-现代风格-北卧.jpg 华润二十四城-95平-现代风格-南卧.jpg 华润二十四城-95平-现代风格-南卧2.jpg

华润二十四城95平两室两厅现代简约风格林凤装饰的主卧室功能性非常齐全,大型的落地窗让采光更好,卧室内设计了床边书桌和书架,可以让主人在更温馨更舒适的环境下进行学习和办公,在书桌旁设置了顶棚的大型衣柜,更大的收纳量,满足日常物品的储藏,家里更整洁,床头悬挂了跟客厅同样的现代风格画作,增加了一丝活力,床以舒适的布艺材质为主,简单舒适。

华润二十四城-95平-现代风格-卫生间.jpg 华润二十四城-95平-现代风格-卫生间2.jpg

华润二十四城95平两室两厅现代简约风格林凤装饰的卫生间采用了颜色较暗的大理石纹理瓷砖,整体色调偏向柔和,淋浴区设置了浴屏,使整个洗手间的干湿分区,洗手台与洗衣机融为一体,使空间利用率更高,整体环境更整洁。

华润二十四城-95平-现代风格-厨房.jpg

华润二十四城95平两室两厅现代简约风格林凤装饰的厨房采用的是敞开式厨房,视觉空间更大,一体式橱柜设计使多个橱柜拼接成整体厨房的台面,存储空间更大,功能性更强。

华润二十四城-95平-现代风格-平面图.jpg

户型图

案例设计师

林凤设计师

设计师:林凤设计师

从业时间:12年

设计理念:让设计成为艺术,让艺术进入生活。

预约设计师

算算你家装修多少钱

报名即享丰厚赠品,享半价装修

免费报价
咨询热线:400-656-9909
20190221103704574636.jpg

精品设计案例

20180612134930523248.jpg 服务号二维码.jpg