立即预约 立即预约
免费定制整装家居

免费定制整装家居

一站置家 全程无忧 一省到底
hide.png

当前位置: 首页 > 装修案例效果图 > 阳光100凤凰湾

阳光100凤凰湾 74平 现代简约风格效果图

收藏
案例风格 现代简约 案例户型 二居 案例面积 74平米
楼盘名称 阳光100凤凰湾 设计师 菅垚 案例类型 改善性住宅

设计理念:本案为现代风格设计,老人养老所居,简约不是简单,退休老人养老住所

客厅
第1张
卧室
第1张
第2张
第3张
卫生间
第1张
第2张
厨房
第1张
衣帽间
第1张
门厅
第1张
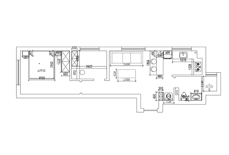
户型图
第1张
  • 案例详情

首图.jpg

阳光100凤凰湾74平两室两厅现代风格林凤装饰的客厅中的整体感觉以简约为主,整体设计成开放式厨房,做饭过程中和家人能更好的互动。

阳光一百凤凰湾-74平-现代风格-卧室 (1).jpg 阳光一百凤凰湾-74平-现代风格-卧室 (2).jpg 阳光一百凤凰湾-74平-现代风格-卧室 (3).jpg

阳光100凤凰湾74平两室两厅现代风格林凤装饰的主卧的色调相对较暖有利于休息和睡眠,书柜能满足睡前阅读的生活习惯,整体的墙板让空间稍大的卧室更温暖有包围感

阳光一百凤凰湾-74平-现代风格-卫生间.jpg 阳光一百凤凰湾-74平-现代风格-洗手间.jpg

阳光100凤凰湾74平两室两厅现代风格林凤装饰的客卫用墙面白色花纹瓷砖提升了质感,让空间更宽敞。

阳光一百凤凰湾-74平-现代风格-厨房.jpg

阳光100凤凰湾74平两室两厅现代风格林凤装饰的厨房

衣帽间.jpg

阳光100凤凰湾74平两室两厅现代风格林凤装饰的衣帽间

阳光一百凤凰湾-74平-现代风格-门厅.jpg

阳光100凤凰湾74平两室两厅现代风格林凤装饰的玄关在门口左面矮的鞋柜做空间分割和玻璃隔断相搭配。并且一进门的玄关造型给人眼前一亮,让人不由自主会对内部空间充满期待

平面图.jpg

户型图

案例设计师

菅垚

设计师:菅垚

从业时间:11年

设计理念:没有最好的方案,只有最适合的方案

预约设计师

算算你家装修多少钱

报名即享丰厚赠品,品质装修

免费报价
咨询热线:400-656-9909
20190221103704574636.jpg

精品设计案例

20180612134930523248.jpg 服务号二维码.jpg