立即预约 立即预约
免费定制整装家居

免费定制整装家居

一站置家 全程无忧 一省到底
hide.png

当前位置: 首页 > 装修案例效果图 > 首创光合城

首创光合城 87平 现代简约风格效果图

收藏
案例风格 现代简约 案例户型 二居 案例面积 87平米
楼盘名称 首创光合城 设计师 慈英雪 案例类型 改善性住宅

设计理念:本设计方案以现代风格为主,风格定位为现代装饰主义。简约舒适是最初的理念,使用中性色和柔和的色彩和线条,以现代时尚感与功能来贯穿整体,放下繁碌事物,放松回到舒适之家。

客厅
第1张
第2张
餐厅
第1张
第2张
卧室
第1张
第2张
第3张
卫生间
第1张
厨房
第1张
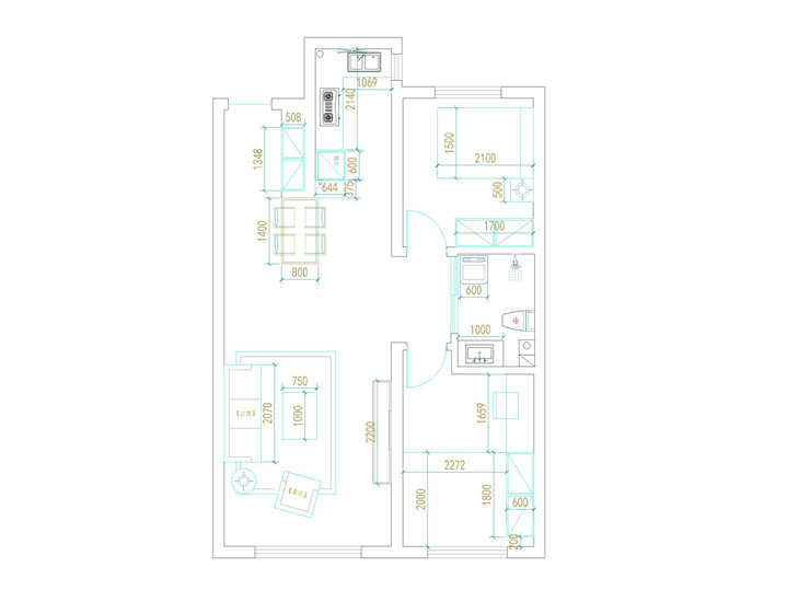
户型图
第1张
  • 案例详情

首创国际城-87平-现代风格-客厅 (2).jpg 首创国际城-87平-现代风格-客厅.jpg

首创光合城87平两室两厅现代风格林凤装饰的客厅没有复杂的吊棚,只做了一圈叠级石膏线,客厅采用温馨色调的木色地板,使家更温馨自然。电视背景墙采用淡蓝色设计 搭配灰白色电视柜,显得客厅格外干净 整洁。在材质上,选用木塑、皮质、实木地板等都有质感简单的家具,让空间显得更宽敞、整洁。 好的设计也许改变不了所有,欲足以重塑日常;而更好的日常,也许就是生活该有的样子。

首创国际城-87平-现代风格-餐厅 (2).jpg 首创国际城-87平-现代风格-餐厅(首图).jpg

首创光合城87平两室两厅现代风格林凤装饰的餐厅和开放式厨房连接,增加了餐厅和厨房之间的互动,同时解决了餐厅空间不够的问题。餐厅和厨房是连接在一起的,打破了传统的厨餐模式。

首创国际城-87平-现代风格-主卧室.jpg 首创国际城-87平-现代风格-榻榻米.jpg 首创国际城-87平-现代风格-榻榻米1.jpg

首创光合城87平两室两厅现代风格林凤装饰的卧室床头墙面采用粉色壁纸,搭配淡灰色床头,使空间整体温馨 干净,满足了小女孩的少女心。

首创国际城-87平-现代风格-卫生间.jpg

首创光合城87平两室两厅现代风格林凤装饰的卫生间整体采用了浅灰的的墙地砖,搭配黑色的浴室柜,两种颜色完美的结合在一起,使空间更具高级感,洗漱柜镜柜的设计,增加了收纳,使空间的利用率最大化。

首创国际城-87平-现代风格-厨房.jpg

首创光合城87平两室两厅现代风格林凤装饰的厨房主要以深灰色的地柜搭配白色吊柜,采用白色墙砖,更加能突显图房主的品味。

首创国际城-87平-现代风格-平面图.jpg

户型图

案例设计师

慈英雪

设计师:慈英雪

从业时间:8年

设计理念:做有情感的设计,做符合生活方式的设计,无限优化生活空间

预约设计师

算算你家装修多少钱

报名即享丰厚赠品,品质装修

免费报价
咨询热线:400-656-9909
20190221103704574636.jpg

精品设计案例

20180612134930523248.jpg 服务号二维码.jpg