立即预约 立即预约
免费定制整装家居

免费定制整装家居

一站置家 全程无忧 一省到底
hide.png

当前位置: 首页 > 装修案例效果图 > 华润24城

华润24城 154平 港式风格效果图

收藏
案例风格 港式 案例户型 四居 案例面积 154平米
楼盘名称 华润24城 设计师 林凤装饰设计师 案例类型 改善性住宅

设计理念:用明快的色彩、简单的线条与金属质感营造家居空间,冷静的配色、简洁而时尚、轻奢而精致是港式风格设计理念的特点。

客厅
第1张
第2张
餐厅
第1张
卧室
第1张
第2张
卫生间
第1张
厨房
第1张
书房
第1张
门厅
第1张
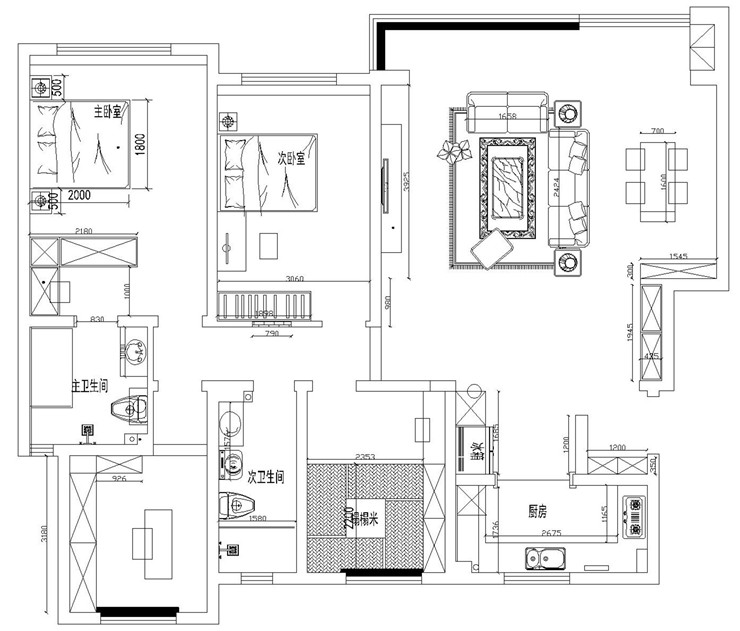
户型图
第1张
  • 案例详情

s8-安娜-华润24城154-港式风格-客厅.jpg s8-安娜-华润24城154-港式风格-客厅2-.jpg

华润24城154平四室两厅港式风格林凤装饰的客厅简单时尚的造型,给现代简约客厅带给人一种清爽的感觉,就算是炎炎的夏日也不容易当人感觉到烦躁。深色带给人沉稳的感觉,又显得特别大气。白色大理石电视背景墙,让整个空间高端档次的感觉立即就上来了。

s8-安娜-华润24城154-港式风格-餐厅.jpg

华润24城154平四室两厅港式风格林凤装饰的餐厅的跨度很宽敞,所以在沙发后摆放餐桌,并设计到顶储物柜,开放格与封闭门板相结合,使柜子具备储物功能的同时,又具有美观性。

s8-安娜-华润24城154-港式风格-榻榻米房间.jpg s8-安娜-华润24城154-港式风格-主卧.jpg

华润24城154平四室两厅港式风格林凤装饰的卧室是家庭居室的重要组成部分,即使再小的居室,也要有睡卧的空间物空间,卧室的家具在造型设计上要平淡中见端庄,进而体现宁静亲近感。 主卧卫生间的门,正对着窗与窗户,设计L型衣帽间做遮挡,解决了风水上的冲突的同时,又增加了储物量,增加了梳妆台。

s8-安娜-华润24城154-港式风格-卫生间.jpg

华润24城154平四室两厅港式风格林凤装饰的卫生间灰色调的主色搭配暖调的灯光,马桶后面安装了电热毛巾架,方便挂毛巾使用。

s8-安娜-华润24城154-港式风格-厨房.jpg

华润24城154平四室两厅港式风格林凤装饰的厨房U型橱柜最大化增加厨房使用面积AB版深浅搭配,拉伸了厨房比例,与客厅的颜色呼应。

s8-安娜-华润24城154-港式风格-书房.jpg

华润24城154平四室两厅港式风格林凤装饰的书房

s8-安娜-华润24城154-港式风格-门厅.jpg

华润24城154平四室两厅港式风格林凤装饰的玄关

s8-安娜-华润24城154-港式风格-平面图.jpg

户型图

案例设计师

林凤装饰设计师

设计师:林凤装饰设计师

从业时间:6年

设计理念:Less is more.

预约设计师

算算你家装修多少钱

报名即享丰厚赠品,品质装修

免费报价
咨询热线:400-656-9909
20190221103704574636.jpg

精品设计案例

20180612134930523248.jpg 服务号二维码.jpg