立即预约 立即预约
免费定制整装家居

免费定制整装家居

一站置家 全程无忧 一省到底
hide.png

当前位置: 首页 > 装修案例效果图 > 惠民苑

惠民苑 80平 现代简约风格效果图

收藏
案例风格 现代简约 案例户型 二居 案例面积 80平米
楼盘名称 惠民苑 设计师 林凤设计师 案例类型 改善性住宅

设计理念:本案以现代元素为主,更改格局,化零为整,充分考虑业主舞蹈等爱好,融入设计中

客厅
第1张
第2张
第3张
餐厅
第1张
卧室
第1张
第2张
卫生间
第1张
厨房
第1张
门厅
第1张
户型图
第1张
  • 案例详情

惠民苑-80平- 现代黑白灰 -客厅 (2).png 惠民苑-80平- 现代黑白灰 -客厅.png 惠民苑-80平- 现代黑白灰 -客厅 (3).png

惠民苑80平两室两厅现代黑白灰林凤装饰的客厅以简洁为理念,打通轻体墙,化零为整扩大视野。简单的吊顶线条,进行无主灯设计。搭配浅灰色理石纹理瓷砖,墙壁木饰面,丰富了层次的变化,通过材质来体现简约不简单的高级感。

惠民苑-80平- 现代黑白灰 -餐厅.png

惠民苑80平两室两厅现代黑白灰林凤装饰的餐厅重新进行了格局划分,和客厅融合又通过电视背景墙进行软分割,整体用岛台代替餐桌,让餐厅功能更加实用。

惠民苑-80平- 现代黑白灰 -卧室.jpg 惠民苑-80平- 现代黑白灰 -主卧室.png

惠民苑80平两室两厅现代黑白灰林凤装饰的主卧室功能性非常齐全,注重收纳量,满足日常物品的储藏,家里更整洁,床头背景墙以软包为主,简单舒适,在黑白灰冷色调的空间里添加一份温馨。

惠民苑-80平- 现代黑白灰 -卫生间.jpg

惠民苑80平两室两厅现代黑白灰林凤装饰的卫生间注重干湿分区,布局合理,实用方便。

惠民苑-80平- 现代黑白灰 -厨房.jpg

惠民苑80平两室两厅现代黑白灰林凤装饰的厨房采用的是半敞开式厨房,视觉空间更大,又因为业主不喜欢集成灶,油烟问题进行了可折叠推拉门来解决难题。

惠民苑-80平- 现代黑白灰 -玄关.png

惠民苑80平两室两厅现代黑白灰林凤装饰的玄关

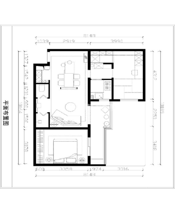
惠民苑-80平- 现代黑白灰 -平面图.png

户型图

案例设计师

林凤设计师

设计师:林凤设计师

从业时间:10年

设计理念:把设想通过合理的规划和周密的计划通过美的形式传递出来便是设计,所以设计要以人为本,最终做到美与舒适的完美结合

预约设计师

算算你家装修多少钱

报名即享丰厚赠品,享半价装修

免费报价
咨询热线:400-656-9909
20190221103704574636.jpg

精品设计案例

20180612134930523248.jpg 服务号二维码.jpg