立即预约 立即预约
免费定制整装家居

免费定制整装家居

一站置家 全程无忧 一省到底
hide.png

当前位置: 首页 > 装修案例效果图 > 阳光100国际新城

阳光100国际新城 156平 新中式风格效果图

收藏
案例风格 新中式 案例户型 三居 案例面积 156平米
楼盘名称 阳光100国际新城 设计师 林凤设计师 案例类型 改善性住宅

设计理念:新中式风格是近年才在中国兴起的新型装饰风格。在中式风格的基础上,添加了一些现代元素。作为现代风格与中式风格的结合。

客厅
第1张
第2张
第3张
第4张
餐厅
第1张
第2张
卧室
第1张
第2张
卫生间
第1张
厨房
第1张
门厅
第1张
过廊
第1张
户型图
第1张
  • 案例详情

阳光100国际新城-156-新中式风格-客厅.jpg 阳光100国际新城-156-新中式风格-客厅3.jpg 阳光100国际新城-156-新中式风格-客厅2.jpg 阳光100国际新城-156-新中式风格-首图.jpg

阳光100国际新城156平三室两厅新中式风格林凤装饰的客厅整体做了空间划分的掉棚。同事棚上也做了中式的实木线修饰。搭配实木与石材相融合的背景堪称绝配。同时做了一个隐藏门。方便出入主卧室也不尴尬。沙发后侧这是做了一个沙发背景。挂上几幅字画更能凸显中式的韵味。

阳光100国际新城-156-新中式风格-餐厅.jpg 阳光100国际新城-156-新中式风格-餐厅2.jpg

阳光100国际新城156平三室两厅新中式风格林凤装饰的餐厅的掉棚和客厅相似做了一个很好的搭配处理。实木的圆桌设计可以容纳更多人就餐同时也保证了整个设计方案中式的元素。

阳光100国际新城-156-新中式风格-次室.jpg 阳光100国际新城-156-新中式风格-主卧室.jpg

阳光100国际新城156平三室两厅新中式风格林凤装饰的主卧室深色的木质地板搭配上实木的床。为了使得空间更加立体在床头做了一个符合中式元素和现代工艺结合的背景墙造型。

阳光100国际新城-156-新中式风格-卫生间.jpg

阳光100国际新城156平三室两厅新中式风格林凤装饰的卫生间空间并不算太大。所以在瓷砖的选择上选择了中色调的墙砖深浅色的搭配。为了使淋浴区更加干净整洁做了浴屏的设计。

阳光100国际新城-156-新中式风格-厨房.jpg

阳光100国际新城156平三室两厅新中式风格林凤装饰的厨房空间够大。出轨了做了整体U型设计。实木的橱柜搭配上白色石英石台面斜拼的墙砖使得厨房空间质感更加强烈。

阳光100国际新城-156-新中式风格-玄关.jpg

阳光100国际新城156平三室两厅新中式风格林凤装饰的玄关

阳光100国际新城-156-新中式风格-过廊.jpg

阳光100国际新城156平三室两厅新中式风格林凤装饰的走廊

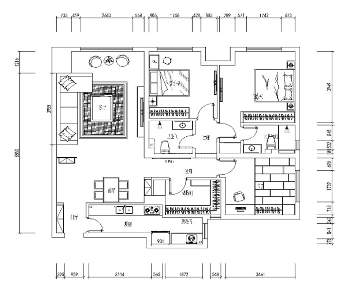
阳光100国际新城-156-新中式风格-平面.jpg

户型图

案例设计师

林凤设计师

设计师:林凤设计师

从业时间:10年

设计理念:

预约设计师

算算你家装修多少钱

报名即享丰厚赠品,享半价装修

免费报价
咨询热线:400-656-9909
20190221103704574636.jpg

精品设计案例

20180612134930523248.jpg 服务号二维码.jpg