立即预约 立即预约
免费定制整装家居

免费定制整装家居

一站置家 全程无忧 一省到底
hide.png

当前位置: 首页 > 装修案例效果图 > 九颂大院

九颂大院 109平 现代简约风格效果图

收藏
案例风格 现代简约 案例户型 三居 案例面积 109平米
楼盘名称 九颂大院 设计师 张景新 案例类型 改善性住宅

设计理念:用心去设计,让设计成为生活的必需品。

客厅
第1张
第2张
第3张
餐厅
第1张
卧室
第1张
第2张
第3张
卫生间
第1张
厨房
第1张
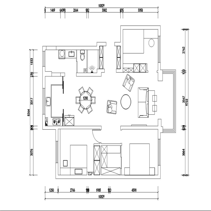
户型图
第1张
  • 案例详情

九颂大院-极简-109-客厅.jpg 九颂大院-极简-109-广角1.jpg 九颂大院-极简-109-客厅1.jpg

九颂大院109平三室两厅现代极简风格林凤装饰的客厅整体风格打破了常规的客厅布局 常规的转交沙发 使得空间压抑 死板 所以这次设计以极简的沙发对坐形式 使得空间增加了交流对话 随时可以移动的单椅 使得空间 非常的灵动 回到家以后 使得业主不在是 低头拿着手机 抬头看着电视 和妻子和孩子的互动 少知又少 而是现在的沙发背后 增加了学习 阅读的空间 大人孩子 可以 一遍学习 一边交流 也展现了一个全新的生活方式

九颂大院-极简-109-餐厅.jpg

九颂大院109平三室两厅现代极简风格林凤装饰的餐厅是不在由简单的四人餐位 而是做成了圆桌的形式 更好的利用餐厅的空间 做成了环绕的动线 同时圆形餐桌更是增加了彼此交流的空间 一家人团团圆圆的坐在一起享受这美食

九颂大院-极简-109-客卧.jpg 九颂大院-极简-109-南卧室.jpg 九颂大院-极简-109-主卧室.jpg

九颂大院109平三室两厅现代极简风格林凤装饰的主卧室床头两侧各自采用了线型壁灯 采用了单开单控的形式拉伸了空间的距离感 美观实用 大大的增加了幸福感

九颂大院-极简-109-卫生间.jpg

九颂大院109平三室两厅现代极简风格林凤装饰的卫生间做出了干湿分离的空间 把洗衣机和手盆 单独放在了干区 在不干扰用坐便的同时 也增加了手盆的台面空间 也使得洗衣机离晾衣区更加方便

九颂大院-极简-109-厨房.jpg

九颂大院109平三室两厅现代极简风格林凤装饰的厨房

平面布局图.jpg

户型图

案例设计师

张景新

设计师:张景新

从业时间:6年

设计理念:合理的划分空间,让设计融入生活,营造自然,品味,格调

预约设计师

算算你家装修多少钱

报名即享丰厚赠品,享半价装修

免费报价
咨询热线:400-656-9909
20190221103704574636.jpg

精品设计案例

20180612134930523248.jpg 服务号二维码.jpg