立即预约 立即预约
免费定制整装家居

免费定制整装家居

一站置家 全程无忧 一省到底
hide.png

当前位置: 首页 > 装修案例效果图 > 孔雀城花涧墅

孔雀城花涧墅 155平 新中式风格效果图

收藏
案例风格 新中式 案例户型 四居 案例面积 155平米
楼盘名称 孔雀城花涧墅 设计师 林凤设计师 案例类型 改善性住宅

设计理念:本案设计风格是新中式,根据客户的家庭情况和要求所以采用流行的现代元素和传统的中式家具相搭配,更能体现新中式的设计理念。

客厅
第1张
第2张
卧室
第1张
厨房
第1张
休闲区
第1张
第2张
门厅
第1张
过廊
第1张
第2张
户型图
第1张
  • 案例详情

孔雀城-150平米-新中式风格-首图.jpg 孔雀城-150平米-新中式风格-背景墙.jpg

孔雀城花涧墅155平四室两厅新中式风格林凤装饰的客厅地面采用的是现在最流行的浅灰色地砖,全屋墙面灰色的乳胶漆是属于现代风格,搭配中式实木的沙发与茶几与天蓝色的地毯,天花为石膏板吊棚增加灯带和筒灯。

孔雀城-150平米-新中式风格-主卧室.jpg

孔雀城花涧墅155平四室两厅新中式风格林凤装饰的主卧背景墙采用硬包的护墙板,南面做飘窗业主休息时候可在飘窗喝茶办公,顶面采用现代最流行的无主灯设计,卧室整体属于现代的风格。

孔雀城-150平米-新中式风格-厨房.jpg

孔雀城花涧墅155平四室两厅新中式风格林凤装饰的厨房采用的是u型橱柜,洗菜切菜炒菜合理分布,操作更加得心应手,厨柜内镶嵌蒸箱烤箱方便烹饪,整理空间合理,让客户更能大显厨艺。

孔雀城-150平米-新中式风格-茶桌.jpg 孔雀城-150平米-新中式风格-吧台.jpg

孔雀城花涧墅155平四室两厅新中式风格林凤装饰的茶室

孔雀城-150平米-新中式风格-门厅.jpg

孔雀城花涧墅155平四室两厅新中式风格林凤装饰的玄关

孔雀城-150平米-新中式风格-楼梯间.jpg 孔雀城-150平米-新中式风格-走廊.jpg

孔雀城花涧墅155平四室两厅新中式风格林凤装饰的走廊

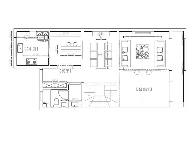
孔雀城-150平米-新中式风格-平面图.jpg

户型图

案例设计师

林凤设计师

设计师:林凤设计师

从业时间:0年

设计理念:

预约设计师

算算你家装修多少钱

报名即享丰厚赠品,享半价装修

免费报价
咨询热线:400-656-9909
20190221103704574636.jpg

精品设计案例

20180612134930523248.jpg 服务号二维码.jpg