立即预约 立即预约
免费定制整装家居

免费定制整装家居

一站置家 全程无忧 一省到底
hide.png

当前位置: 首页 > 装修案例效果图 > 万科二期东区

万科二期东区 100平 现代简约风格效果图

收藏
案例风格 现代简约 案例户型 二居 案例面积 100平米
楼盘名称 万科二期东区 设计师 林凤设计师 案例类型 改善性住宅

设计理念:本案采用简洁明亮的现代风格,硬朗的基础线条选择使空间层次分明,灰白色的基调使整屋更加高贵大气,现代风格是一种受年轻人喜欢的装修风格,追求时尚潮流,注重室内空间的使用功能与布局的结合,追求的是空间的实用性与灵活性,会运用家具或一些装饰品来进行空间的划分,让室内空间更具备流动性、灵活性。

客厅
第1张
第2张
第3张
第4张
餐厅
第1张
第2张
卧室
第1张
第2张
卫生间
第1张
第2张
厨房
第1张
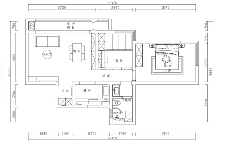
户型图
第1张
  • 案例详情

万科城-100平-现代风格-客厅2.jpg 首图.jpg 万科城-100平-现代风格-客厅1.jpg 万科城-100平-现代风格-客厅3.jpg

万科二期东区100平两室两厅现代风格林凤装饰的客厅的空间与餐厅的空间融合在一起,灰色的地砖与深灰色沙发和原木餐桌呼应,白色墙面与深色家具的相互碰撞,轻奢风格的装饰点缀,线条的堆叠与交错,实现空间的凹凸感,提升内部的质感。

万科城-100平-现代风格-餐厅1.jpg 万科城-100平-现代风格-餐厅2.jpg

万科二期东区100平两室两厅现代风格林凤装饰的餐厅的空间是多变的、灵动的、随性的、白色的柜面,使整个空间更加明亮,深色的原木配上淡绿色的绿植,使餐厅的空间生长出独特的姿态。

万科城-100平-现代风格-次卧.jpg 万科城-100平-现代风格-主卧.jpg

【主卧室说明】卧室的设计更多的注重了空间的美观性和实用性,空间设计上既注重储物又搭配整体的风格,定制衣柜、带边柜的飘窗选择,大大的增加储物的空间,白色和灰色的基调搭配又碰撞出时尚的美感。【次卧室说明】客卧的设计上更多的是为了实用性,原木地板与软装搭配使空间更加沉稳,榻榻米的设计满足了工作休息的日常生活所需,空间的划分、色彩的碰撞使小小的空间迸发出无线的可能。

万科城-100平-现代风格-卫生间1.jpg 万科城-100平-现代风格-卫生间2.jpg

万科二期东区100平两室两厅现代风格林凤装饰的卫生阿金采用灰色系瓷砖选着搭配简单的洁具装饰使得狭小卫浴空间,多了更多了灵动,简单的空间划分、地面和墙面的统一色调也使视觉空间得以最大的延伸。

万科城-100平-现代风格-厨房.jpg

万科二期东区100平两室两厅现代风格林凤装饰的厨房拉门的设计使过道的空间增加了更多的进光,与客厅同色的地砖使厨房的视觉空间得以延伸,简洁的白色柜体选择与瓷砖的搭配也使厨房空间更加趣味和生活化。

万科城-100平-现代风格-平面图.jpg

户型图

案例设计师

林凤设计师

设计师:林凤设计师

从业时间:13年

设计理念:设计是用心雕琢的艺术品

预约设计师

算算你家装修多少钱

报名即享丰厚赠品,享半价装修

免费报价
咨询热线:400-656-9909
20190221103704574636.jpg

精品设计案例

20180612134930523248.jpg 服务号二维码.jpg