立即预约 立即预约
免费定制整装家居

免费定制整装家居

一站置家 全程无忧 一省到底
hide.png

当前位置: 首页 > 装修案例效果图 > 首创光合城

首创光合城 126平 新中式风格效果图

收藏
案例风格 新中式 案例户型 三居 案例面积 126平米
楼盘名称 首创光合城 设计师 林凤设计师 案例类型 改善性住宅

设计理念:一对老夫妻, 老人喜欢禅意.,简单,大气的感觉。

客厅
第1张
第2张
餐厅
第1张
卧室
第1张
第2张
第3张
卫生间
第1张
第2张
厨房
第1张
门厅
第1张
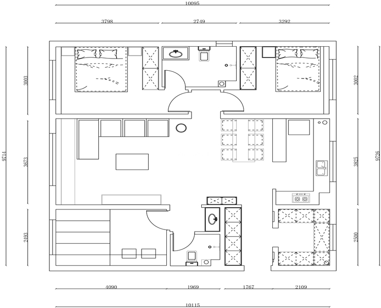
户型图
第1张
  • 案例详情

首创光合城-126-新中式-客厅.jpg 首创光合城-126-新中式-首图.jpg

首创光合城126平三室两厅新中式风格林凤装饰的客厅的墙面没有涂刷特别的颜色以白色为主,茶几和电视柜的颜色相呼应,沙发与茶几和电视柜形成对比,使整个空间看起来简洁大气。沙发背景墙也没有采用特殊的设计,用三幅画来提升空间内中式的气息。

首创光合城-126-新中式-餐厅.jpg

首创光合城126平三室两厅新中式风格林凤装饰的餐厅餐桌采用两种摆放形式,一种是六人位的餐桌,另一种是与厨房连接过来的吧台。这样的设计不仅增大了厨房的储藏空间而且使整个厨房看起来更加宽敞。

首创光合城-126-新中式-次卧2图.jpg 首创光合城-126-新中式-次卧图.jpg 首创光合城-126-新中式-主卧.jpg

首创光合城126平三室两厅新中式风格林凤装饰的主卧室墙面刷的白色的乳胶漆,地面用的是浅色的地板, 深色的衣柜,让整体空间分割的十分明确再加上浅蓝色窗帘这个小小的点缀,让整体效果看起来舒适并且不失美感。

首创光合城-126-新中式-卫生间2图.jpg 首创光合城-126-新中式-卫生间图.jpg

首创光合城126平三室两厅新中式风格林凤装饰的卫生间采用的是干湿分离的设计,这样的设计不仅方便后期的打理,而且使整个空间看起来更加立正。洗手盆的颜色同样为深灰色,与整个空间的色彩达成一致。

首创光合城-126-新中式-厨房图.jpg

首创光合城126平三室两厅新中式风格林凤装饰的厨房采用开放式厨房的设计,白色的墙砖与深灰色的橱柜形成对比,使整个空间看起来更有层次感,白色的理石台面使整个厨房的空间显得干净立正。

首创光合城-126-新中式-门厅.jpg

首创光合城126平三室两厅新中式风格林凤装饰的玄关

首创光合城-126-新中式-平面图.jpg

户型图

案例设计师

林凤设计师

设计师:林凤设计师

从业时间:10年

设计理念:以人为本

预约设计师

算算你家装修多少钱

报名即享丰厚赠品,享半价装修

免费报价
咨询热线:400-656-9909
20190221103704574636.jpg

精品设计案例

20180612134930523248.jpg 服务号二维码.jpg