立即预约 立即预约
免费定制整装家居

免费定制整装家居

一站置家 全程无忧 一省到底
hide.png

当前位置: 首页 > 装修案例效果图 > 华润翡翠城

华润翡翠城 130平 轻奢风格效果图

收藏
案例风格 轻奢 案例户型 二居 案例面积 130平米
楼盘名称 华润翡翠城 设计师 林凤设计师 案例类型 改善性住宅

设计理念:本案是意式轻奢,合理规划每个空间的功能划分,让每个空间都得以利用,搭配里面奢华的材质和线条,理石,墙板,金属线,营造出低调奢华的空间氛围。

客厅
第1张
第2张
第3张
餐厅
第1张
卧室
第1张
第2张
第3张
第4张
卫生间
第1张
厨房
第1张
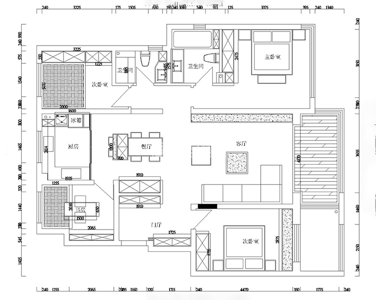
户型图
第1张
  • 案例详情

华润翡翠城-130平-意式轻奢-客厅2.jpg 华润翡翠城-130平-意式轻奢-客厅1.jpg 华润翡翠城-130平-意式轻奢-客厅3.jpg

华润翡翠城130平两室两厅意式轻奢风格林凤装饰的客厅以灰色壁布为主,搭配大板瓷砖上墙,和条形格栅墙板相呼应,沙发背景硬包墙板和金属条,线条感和电视背景相呼应,色系整体以胡桃木为主。门厅的衣帽间将整体餐厅加长,划分出过廊和餐厅的空间,同时也增加了西餐区的收纳。

华润翡翠城-130平-意式轻奢-餐厅.jpg

华润翡翠城130平两室两厅意式轻奢风格林凤装饰的餐厅餐桌以石材和金属质感的家具为主,和倒台的石材相呼应,整体奢华靓丽,金属的长虹玻璃更与棚面金属线相呼应。

华润翡翠城-130平-意式轻奢-次卧1.jpg 华润翡翠城-130平-意式轻奢-次卧2.jpg 华润翡翠城-130平-意式轻奢-次卧3.jpg 华润翡翠城-130平-意式轻奢-主卧.jpg

华润翡翠城130平两室两厅意式轻奢风格林凤装饰的卧室墙面色彩以深灰色为主,链接棚面造型和色彩,地面搭配暮色鱼骨地板,皮质的床头和玻璃柜门让整体看起来更高级,多纬度的灯光也让整体分为更奢华。

华润翡翠城-130平-意式轻奢-卫生间.jpg

华润翡翠城130平两室两厅意式轻奢风格林凤装饰的卫生间墙面以灰色理石纹理为准,采用地砖上墙,搭配颜色单一的纯色卫浴,让整体空间显得高贵,奢华。

华润翡翠城-130平-意式轻奢-厨房.jpg

华润翡翠城130平两室两厅意式轻奢风格林凤装饰的厨房墙砖采用白色爵士白纹理,橱柜上浅下深,上柜以白色为主,下柜以深灰色为主,整体干净,明亮。

华润翡翠城-130平-意式轻奢-平面图.jpg

户型图

案例设计师

林凤设计师

设计师:林凤设计师

从业时间:5年

设计理念:经验和习惯的沉淀,时尚与美观的结合

预约设计师

算算你家装修多少钱

报名即享丰厚赠品,享半价装修

免费报价
咨询热线:400-656-9909
20190221103704574636.jpg

精品设计案例

20180612134930523248.jpg 服务号二维码.jpg