立即预约 立即预约
免费定制整装家居

免费定制整装家居

一站置家 全程无忧 一省到底
hide.png

当前位置: 首页 > 装修案例效果图 > 中航城两河流域

中航城两河流域 150平 现代简约风格效果图

收藏
案例风格 现代简约 案例户型 三居 案例面积 150平米
楼盘名称 中航城两河流域 设计师 王松 案例类型 改善性住宅

设计理念:本设计方案以现代轻奢风格为主,主色系为黑白灰,材质上选择了玻璃及金属框架和灰色布艺,为客户打造一个温馨时尚的空间。

客厅
第1张
第2张
第3张
餐厅
第1张
第2张
卧室
第1张
卫生间
第1张
第2张
第3张
第4张
门厅
第1张
过廊
第1张
第2张
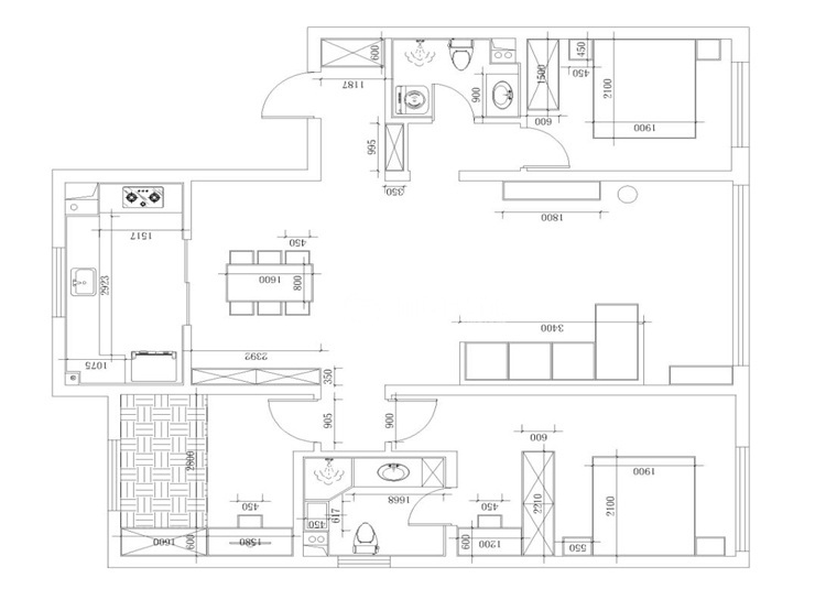
户型图
第1张
  • 案例详情

中航城两河流域-150平-现代风格-首图.jpg 中航城两河流域-150平-现代风格-客厅 (3).jpg 中航城两河流域-150平-现代风格-客厅.jpg

中航城两河流域150平三室两厅现代风格林凤装饰的客户喜欢大方简洁的轻奢风格,所以选择了灰色和白色来进行色彩搭配墙壁。沙发单用灰色较为单调,所以采用了深粉红色系的边沙发进行点缀,绿色绿植在两旁起使其颜色协调的作用,让整体空间和谐简洁。

中航城两河流域-150平-现代风格-餐厅 (2).jpg 中航城两河流域-150平-现代风格-餐厅.jpg

中航城两河流域150平三室两厅现代风格林凤装饰的餐厅部位墙壁设置了黑色轻奢玻璃门酒柜,享受生活的慢节奏,正中间放置了白色台面金色边腿的餐桌,酒红色的皮质餐椅搭配金边餐椅充满了精致和高级感。

中航城两河流域-150平-现代风格-主卧室.jpg

中航城两河流域150平三室两厅现代风格林凤装饰的卧室

中航城两河流域-150平-现代风格-客卫 (2).jpg 中航城两河流域-150平-现代风格-客卫.jpg 中航城两河流域-150平-现代风格-主卫 (2).jpg 中航城两河流域-150平-现代风格-主卫.jpg

中航城两河流域150平三室两厅现代风格林凤装饰的卫生间采用灰白黑基调的颜色,做到了干湿分离的日常生活需求,整个空间的色彩使人舒适,极简主义风格,不显突兀。

中航城两河流域-150平-现代风格-门厅.jpg

中航城两河流域150平三室两厅现代风格林凤装饰的玄关

中航城两河流域-150平-现代风格-过廊 (2).jpg 中航城两河流域-150平-现代风格-过廊.jpg

中航城两河流域150平三室两厅现代风格林凤装饰的过廊

中航城两河流域-150平-现代风格-平面图.jpg

户型图

案例设计师

王松

设计师:王松

从业时间:10年

设计理念:品味生活,从家开始

预约设计师

算算你家装修多少钱

报名即享丰厚赠品,享半价装修

免费报价
咨询热线:400-656-9909
20190221103704574636.jpg

精品设计案例

20180612134930523248.jpg 服务号二维码.jpg