立即预约 立即预约
免费定制整装家居

免费定制整装家居

一站置家 全程无忧 一省到底
hide.png

当前位置: 首页 > 装修案例效果图 > 长堤湾

长堤湾 95平 现代简约风格效果图

收藏
案例风格 现代简约 案例户型 二居 案例面积 95平米
楼盘名称 长堤湾 设计师 林凤全案设计师 案例类型 改善性住宅

设计理念:本案装修风格定位为现代简约风格,现代简约是近几年比较流行的风格,本案设计强调了功能性设计,空间简约注重居室的实用性
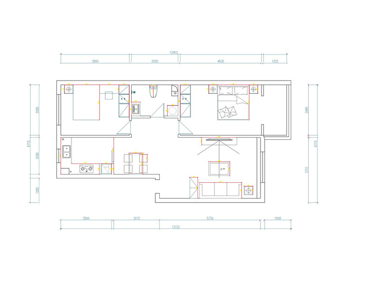
户型分析:
优点:本案整体户型归方,功能区布局合理
缺点:各个空间面积偏小,公共空间不经过拆改的话布局很不合理。

客厅
第1张
餐厅
第1张
卧室
第1张
第2张
第3张
第4张
卫生间
第1张
厨房
第1张
门厅
第1张
户型图
第1张
  • 案例详情

长堤湾-95平-现代简约-主图 客厅.jpg

长堤湾95平两室两厅现代风格林凤装饰的客厅整体业主要求简约实用温馨,简洁沙发茶几,沙发靠在墙边,给人一种舒适安静的感觉。入户玄关定制鞋柜屏风,私密性更好。

长堤湾-95平-现代简约-餐厅.jpg

长堤湾95平两室两厅现代风格林凤装饰的餐厅

长堤湾-95平-现代简约-次卧1.jpg 长堤湾-95平-现代简约-次卧2.jpg 长堤湾-95平-现代简约-主卧1.jpg 长堤湾-95平-现代简约-主卧2.jpg

长堤湾95平两室两厅现代风格林凤装饰的卧室业主要求设计空间合理简洁,定制通顶衣柜,浅色地板整体色调以浅色为主。

长堤湾-95平-现代简约-卫生间.jpg

长堤湾95平两室两厅现代风格林凤装饰的卫生间

长堤湾-95平-现代简约-厨房.jpg

长堤湾95平两室两厅现代风格林凤装饰的厨房为更加合理,采光更好,敲掉了原始平开门口,扩大了门洞面积,采用拉门。橱柜采用原木色饰面的整体橱柜,更好打造了现现代化厨房。颜色的选择以清洁卫生为主。

长堤湾-95平-现代简约-玄关.jpg

长堤湾95平两室两厅现代风格林凤装饰的玄关

长堤湾-95平-现代简约-平面图.jpg

户型图

案例设计师

林凤全案设计师

设计师:林凤全案设计师

从业时间:6年

设计理念:以人为本为中心,创造功能合理、舒适优美、满足人们物质和精神生活需要的室内环境!

预约设计师

算算你家装修多少钱

报名即享丰厚赠品,品质装修

免费报价
咨询热线:400-656-9909
20190221103704574636.jpg

精品设计案例

20180612134930523248.jpg 服务号二维码.jpg