立即预约 立即预约
免费定制整装家居

免费定制整装家居

一站置家 全程无忧 一省到底
hide.png

当前位置: 首页 > 装修案例效果图 > 嘉山墅

嘉山墅 500平 混搭风格效果图

收藏
案例风格 混搭 案例户型 别墅 案例面积 500平米
楼盘名称 嘉山墅 设计师 林凤设计师 案例类型 改善性住宅

设计理念:本案业主为50多岁夫妇,所以我们经过交流沟通业主很适合深色富有内涵的实木系列,由于共6层,每层运用不同地域的文化风格但整体采用一种色度来贯穿所有风格保持整体一致.所以本案整体采用欧美结合泰式以及地下室新中的混搭设计手法,表现空间的多元化,业主也非常喜欢。

客厅
第1张
第2张
第3张
餐厅
第1张
第2张
卧室
第1张
第2张
卫生间
第1张
厨房
第1张
休闲区
第1张
门厅
第1张
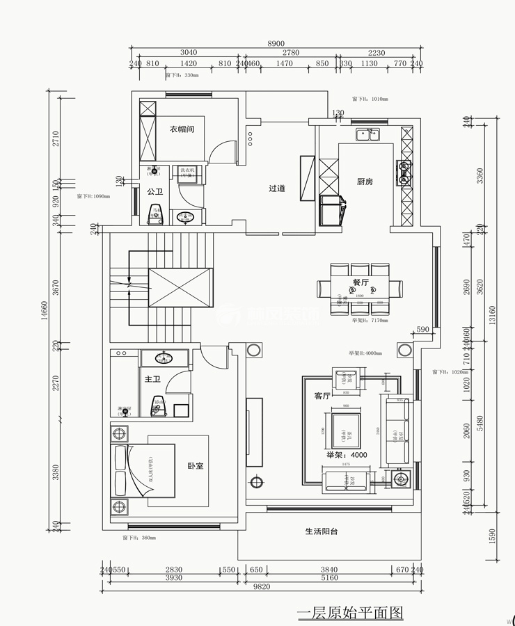
户型图
第1张
  • 案例详情

兴城嘉山墅500㎡-混搭风格-客厅.jpg 兴城嘉山墅500㎡-混搭风格-客厅2.jpg 兴城嘉山墅500㎡-混搭风格-首图.jpg

嘉山墅500平别墅混搭风格林凤装饰的一层客厅整体以欧美为主主,理石和橡木作为整体颜色的大基调,电视背景墙我们采用一款高贵的进口天然大理石来提升空间档次,木质墙板装饰更为搭配,显得更有力量,

兴城嘉山墅-500㎡-混搭风格-餐厅-(16).jpg 兴城嘉山墅-500㎡-混搭风格-餐厅.jpg

嘉山墅500平别墅混搭风格林凤装饰的餐厅采用桃花木作为餐桌木料高贵奢华,深色的木纹佷显沉稳大气,地面采用了地心拼花处理跟椅背的形状做呼应,精致的水晶灯佷显高贵。

兴城嘉山墅500㎡-混搭风格-卧室.jpg 兴城嘉山墅500㎡-混搭风格-卧室2.jpg

嘉山墅500平别墅混搭风格林凤装饰的主卧地面采用了拼花地板很有艺术气息,雕花的床头佷唯美,顶棚采用了穹顶设计高贵神秘,深色衣柜很沉稳,整个空间精雕细琢唯美大方。

兴城嘉山墅500㎡-混搭风格-卫生间.jpg

嘉山墅500平别墅混搭风格林凤装饰的卫生间做了功能的划分,单独的淋浴区,单独的镶嵌浴缸,定制的大理石浴室柜,墙面采用了理石套边,整个空间奢华大气。

兴城嘉山墅-500㎡-混搭风格-厨房.jpg

嘉山墅500平别墅混搭风格林凤装饰的U型厨房,实木雕花门板佷显奢华,深色仿古墙砖彰显古典魅力,白色石膏吊顶干净提亮,整个厨房精致唯美。

兴城嘉山墅500㎡-混搭风格-棋牌室.jpg

嘉山墅500平别墅混搭风格林凤装饰的棋牌室

兴城嘉山墅500㎡-混搭风格-门厅.jpg

嘉山墅500平别墅混搭风格林凤装饰的玄关

兴城嘉山墅500㎡-混搭风格-平面.jpg

户型图

案例设计师

林凤设计师

设计师:林凤设计师

从业时间:20年

设计理念:不做随波逐流的设计,让设计赋予灵魂,用色彩点亮生活。

预约设计师

算算你家装修多少钱

报名即享丰厚赠品,享半价装修

免费报价
咨询热线:400-656-9909
20190221103704574636.jpg

精品设计案例

20180612134930523248.jpg 服务号二维码.jpg