立即预约 立即预约
免费定制整装家居

免费定制整装家居

一站置家 全程无忧 一省到底
hide.png

当前位置: 首页 > 装修案例效果图 > 海城新东方

海城新东方 240平 轻奢风格效果图

收藏
案例风格 轻奢 案例户型 四居 案例面积 240平米
楼盘名称 海城新东方 设计师 林凤设计师 案例类型 改善性住宅

设计理念:本案业主为年轻两口带2个孩子,所以我们考虑到实用及安全性的温馨舒适的房间,根据业主个人喜欢暖色本案整体采用暖色简欧轻奢风的手法,运用暖色颜色,来打造空间的氛围,业主也非常喜欢。

客厅
第1张
第2张
第3张
餐厅
第1张
卧室
第1张
卫生间
第1张
休闲区
第1张
衣帽间
第1张
过廊
第1张
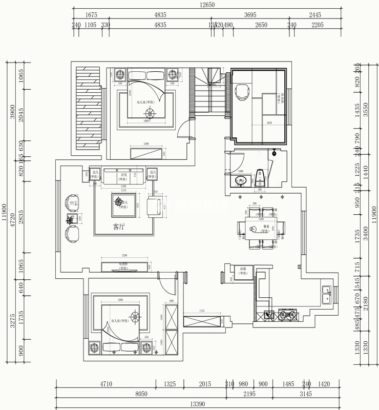
户型图
第1张
  • 案例详情

新东方-240㎡-简欧轻奢风格-客厅1.jpg 新东方-240㎡-简欧轻奢风格-客厅.jpg 新东方-240㎡-简欧轻奢风格-客厅2.jpg

海城新东方240平四室两厅简欧轻奢风格林凤装饰的客厅是挑空的,沙发背景采用了整面石材背景,彰显了奢华大气,新东方古典气息的沙发大气沉稳又不乏高级感,斜顶采用了白石膏顶处理留白了顶部空间,营造了高挑的效果,电视背景墙同样采用了石材,跟沙发背景形成了互动。

新东方-240㎡-简欧轻奢风格-首图.jpg

海城新东方240平四室两厅简欧轻奢风格林凤装饰的餐厅背景采用了软包与镜面搭配放大空间的同时又显高档,黑色亮漆面餐桌高贵大方,白色皮质餐椅整洁大方,流线水晶灯精致典雅。

新东方-240㎡-简欧轻奢风格-榻榻米.jpg

海城新东方240平四室两厅简欧轻奢风格林凤装饰的主卧采用了套房设计,营造了卧室衣帽间,休闲阳台,休闲阳台采用榻榻米设计舒适大方,白色定制柜整洁大方。

新东方-240㎡-简欧轻奢风格-卫生间.jpg

海城新东方240平四室两厅简欧轻奢风格林凤装饰的卫生间地砖上墙提升了整体空间感,流线木纹石瓷砖整体性很好,地面采用亚光理石佷显高贵,白色马桶在整个空间干净亮丽。

新东方-240㎡-简欧轻奢风格-茶室.jpg

海城新东方240平四室两厅简欧轻奢风格林凤装饰的茶室

新东方-240㎡-简欧轻奢风格-衣物间.jpg

海城新东方240平四室两厅简欧轻奢风格林凤装饰的衣物间

新东方-240㎡-简欧轻奢风格-过廊.jpg

海城新东方240平四室两厅简欧轻奢风格林凤装饰的过廊

新东方-240㎡-简欧轻奢风格-平面.jpg

户型图

案例设计师

林凤设计师

设计师:林凤设计师

从业时间:20年

设计理念:不做随波逐流的设计,让设计赋予灵魂,用色彩点亮生活。

预约设计师

算算你家装修多少钱

报名即享丰厚赠品,品质装修

免费报价
咨询热线:400-656-9909
20190221103704574636.jpg

精品设计案例

20180612134930523248.jpg 服务号二维码.jpg